Hidden Architecture
  • Journal
  • Atlas
  • About
  • Manifesto
  • Series
  • Community
  • Illustrations

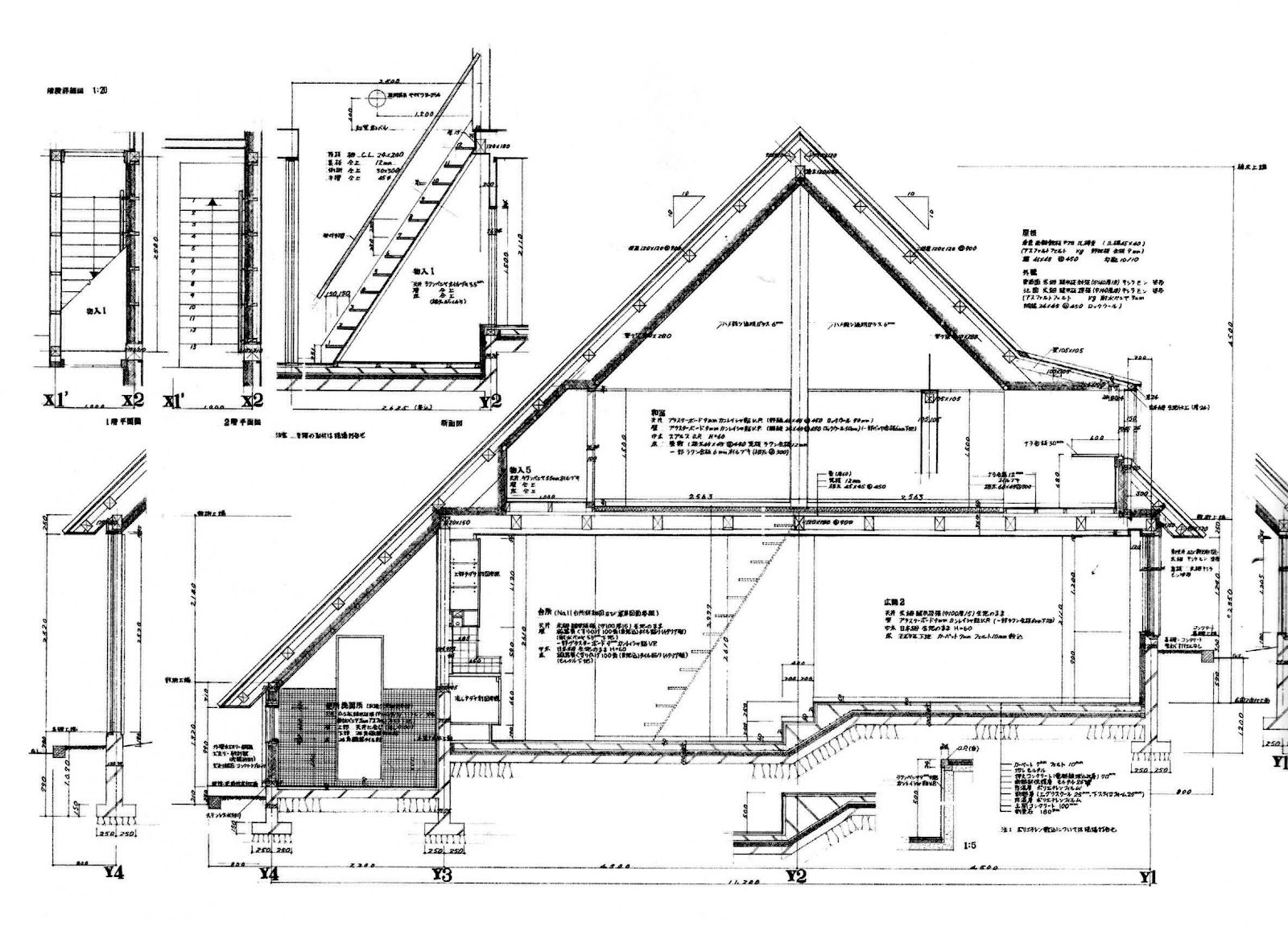
Tanikawa House

  • Author: Kazuo Shinohara
  • Location: Japan (Nagano Prefecture)
  • Year: 1972
  • Function: Individual Housing
  • Elements: Floor, Roof
  • Status: Built
  • Tags: Domestic, Section
We use cookies to ensure that we give you the best experience on our website. If you continue to use this site we will assume that you are happy with it.