A house as a large family room suspended in the city.
A house with a child’s room suspended within.
A house with two legs and a usable roof.
A house glanced by a passing Ninja (Impressed Shadow Façade).
Una casa como una gran sala familiar suspendida en la ciudad.
Una casa con la habitación de un niño suspendida dentro.
Una casa con dos patas y un techo utilizable.
Una casa vista por un Ninja que pasa (Fachada de Sombra Impresionada).

![]() |
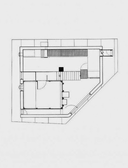
| Ground Floor |
![]() |
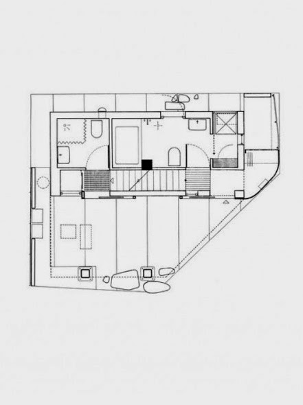
| First Floor |
![]() |
| Second Floor |
![]() |
| Unfolded elevation |












