Hidden Architecture
  • Journal
  • Atlas
  • About
  • Manifesto
  • Series
  • Community
  • Illustrations

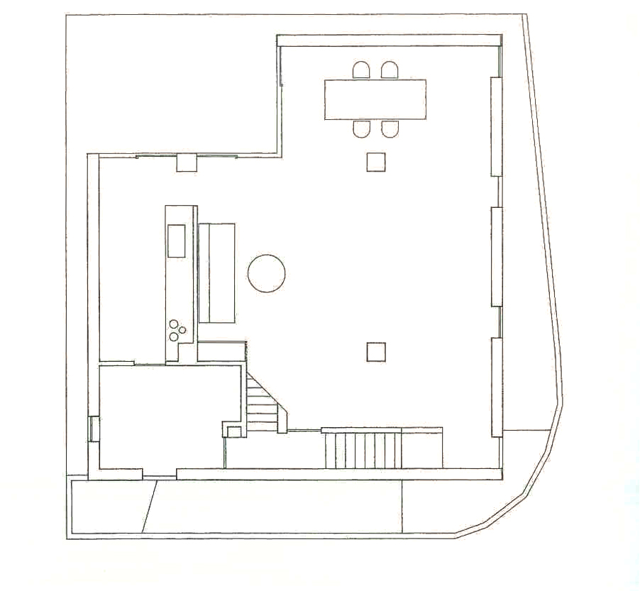
House in a Curved Road

  • Author: Kazuo Shinohara
  • Location: Japan (Tokyo)
  • Year: 1969
  • Function: Individual Housing
  • Elements: Structure
  • Status: Built
  • Tags: Brutalism, Domestic, Interior, Metabolism, Post-Modernism

 

 

 

 

 

 

We use cookies to ensure that we give you the best experience on our website. If you continue to use this site we will assume that you are happy with it.