The Vanbrugh Park housing scheme, designed for Greenwich Borough Council, lies on the south side of Blackheath, east of Greenwich Park. The level site, of just under seven acres, was previously occupied by war-damaged Victorian houses and their gardens and possesses a number of mature trees mostly lying along the old garden boundaries. The scheme consists of a mixture of houses and flats, built to a density of 90 persons to the acre.
El complejo de viviendas Vanbrugh Park, diseñado para el Ayuntamiento de Greenwich, se encuentra en la ladera sur de Blackheath, al este de Greenwich Park. El terreno, de poco menos de siete acres, estaba ocupado anteriormente por casas victorianas dañadas por la guerra y sus jardines, y cuenta con varios árboles maduros que se extienden principalmente a lo largo de los antiguos límites del jardín. El complejo consiste en una combinación de casas y apartamentos, construidos con una densidad de 90 personas por acre.

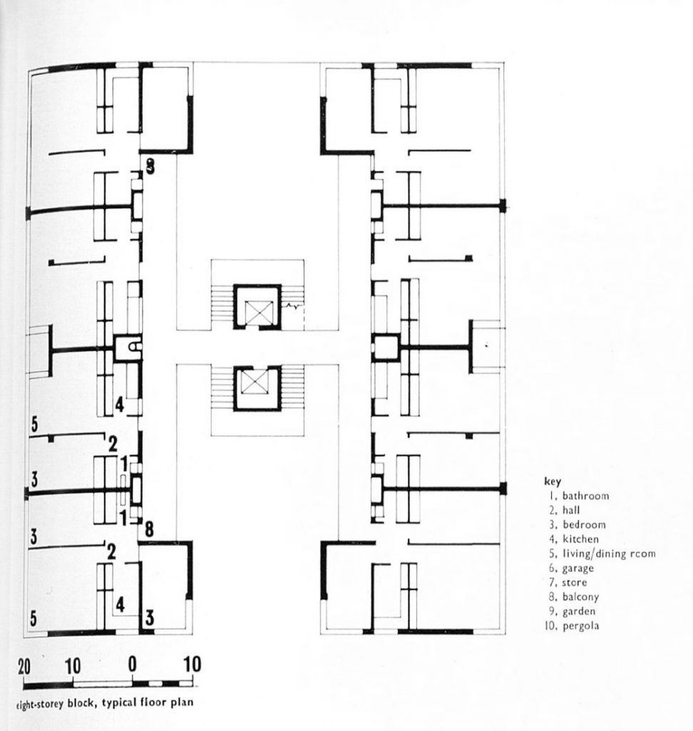
Most of the flats are in one block of eight stories (plus a low-level storage floor), which has been placed at the north end of the site to make the most of the good views towards the site from the Heath. Other flats occupy a single floor over the terraces of garages, which are on the perimeter of the site for reasons of access. Those facing the Heath have garages on the inner side only, so as to present an unbroken wall towards the Heath. This wall is of old bricks and continues the old wall of Greenwich Park. The houses are laid out in short terraces, enclosing courts connected by alleys, and each has a small garden, partly brick-walled. The site, being surrounded by wide roads, is screened from them either by its own buildings or by sections of brick walling, the latter being set back to preserve the lines of old trees. The access roads within the scheme do not allow through traffic. They serve a separate system of pathways, one of which passes through the high block and reaches the heath by means of a bridge over a sunken section of the road.
La mayoría de los apartamentos se encuentran en un bloque de ocho plantas (más una planta baja de almacenamiento), ubicado en el extremo norte del terreno para aprovechar al máximo las buenas vistas desde el Heath. Otros apartamentos ocupan una sola planta sobre las terrazas de los garajes, que se encuentran en el perímetro del terreno por razones de acceso. Los apartamentos que dan al Heath tienen garajes solo en el lado interior, para presentar un muro continuo hacia el Heath. Este muro es de ladrillo antiguo y continúa el antiguo muro de Greenwich Park. Las casas se disponen en terrazas cortas, rodeando patios conectados por callejones, y cada una cuenta con un pequeño jardín, parcialmente amurallado. El terreno, al estar rodeado de amplias calles, está aislado de ellas por sus propias edificaciones o por secciones de muros de ladrillo, estos últimos retranqueados para preservar las hileras de árboles centenarios. Los caminos de acceso dentro del complejo no permiten el tráfico de paso. Sirven a un sistema independiente de senderos, uno de los cuales atraviesa el bloque alto y llega al brezal mediante un puente sobre un tramo hundido de la calle.
The houses and the garage flats are of cavity wall construction, both leaves being of concrete blocks containing their own additional cavities, which gives good insulation and water exclusion. On the outside, they have a thick, elastic, paint-like finish. Floors and roofs are timber. The high block is of reinforced concrete with a Thames Valley ballast aggregate pick hammered and afterwards stained. Windows are galvanized steel in softwood frames.
Las casas y los garajes están construidos con muros huecos, ambos de bloques de hormigón con sus propias cavidades adicionales, lo que proporciona un buen aislamiento y una buena impermeabilización. En el exterior, presentan un acabado grueso, elástico y similar a la pintura. Los suelos y techos son de madera. El bloque alto es de hormigón armado con agregado de balasto del Valle del Támesis, martillado a martillo y posteriormente teñido. Las ventanas son de acero galvanizado con marcos de madera blanda.
“Housing, Blackheath: Council Estate, Vanbrugh Park, London.” The Architectural Review. November 1, 1965,138













