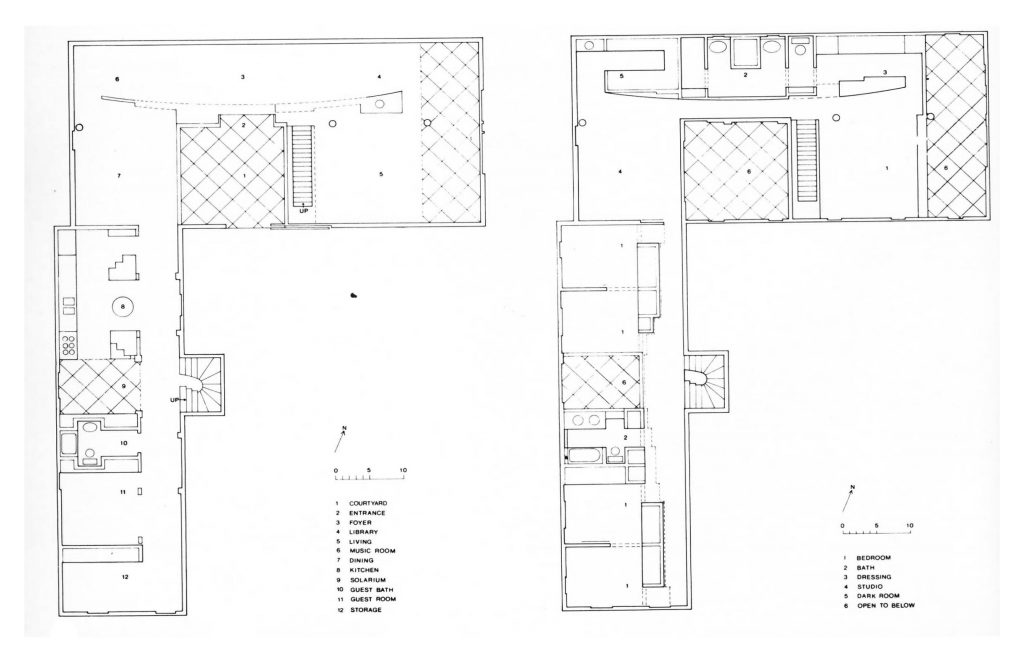
The warehouse is located on a quarter-acre lot adjoining a public park with access from an established residential street. The building was built in 1926 of hollow clay tile, surfaced with brick and stucco. It is a two-storey L-shaped structure which, in its original state, was divided into small storage cells along a central corridor in each wing. The renovation provides living accommodation for a family of two adults and four children.

El almacén está situado en una parcela de mil metros cuadrados, junto a un parque público, con acceso desde una calle residencial consolidada. El edificio, construido en 1926, es de ladrillo hueco, revestido con ladrillo y estuco. Se trata de una estructura de dos plantas en forma de L que, en su estado original, estaba dividida en pequeños almacenes a lo largo de un pasillo central en cada ala. La reforma lo ha convertido en una vivienda para una familia de dos adultos y cuatro niños.

An attempt was made in the design to comment on the ambiance of the existing structure which was built by Italian masons in a Tuscan vernacular manner. The existing openings (truck docks)were used as the primary entrances to the building in an effort to preserve the surface value of the facades. To identify the primary entrance and to gain light in the depth of the building without greatly altering the exterior walls, a courtyard excision was made into the structure. Elements of the new construction were thus established inside the body of the building. The overall simplicity of the existing interior and exterior surfaces was left intact; however, the new surfaces have been elaborated with figural elements in order to allow a closer identification with classical and anthropomorphic sources.  

En el proyecto se buscó reflejar la atmósfera de la estructura original, construida por albañiles italianos en un estilo vernáculo toscano. Las aberturas existentes (muelles de carga) se utilizaron como entradas principales del edificio, con el fin de preservar el valor estético de las fachadas. Para identificar la entrada principal e iluminar el interior del edificio sin modificar sustancialmente las paredes exteriores, se creó un patio interior. De esta manera, los elementos de la nueva construcción se integraron en el cuerpo del edificio. La sencillez general de las superficies interiores y exteriores originales se mantuvo intacta; sin embargo, las nuevas superficies se han enriquecido con elementos figurativos para establecer una conexión más estrecha con fuentes clásicas y antropomórficas.

Text via: David Dunster. Michael Graves. New York: Rizzoli, 1979, 58.