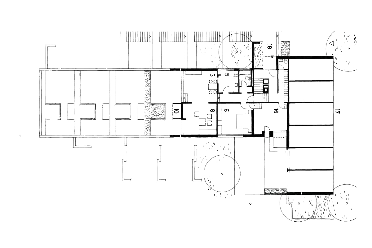
The location of the site prompted the implementation of an unusual solution. The site, which is accessed from above, has a steep slope to the southwest, offering unobstructed views of the lake, the Uetliberg and the Alps. The city itself is hidden by the wooded green belt of the Stöckentobel ravine. The neighbours were convinced that the unusual building would blend in better than a project that complied with building regulations. It consists of a main volume nine metres wide which, as a sloping structure almost forty metres long, clings to the steep hillside. The lower floors contain apartments, while the upper section and the single-storey side wing house offices, studios and warehouses.
La ubicación del solar impulsó la implementación de una solución inusual. El terreno, al que se accede desde arriba, tiene una pendiente pronunciada hacia el suroeste, lo que ofrece vistas despejadas del lago, el Uetliberg y los Alpes. La ciudad en sí está oculta por el cinturón verde boscoso del barranco de Stöckentobel. Se convenció a los vecinos de que el inusual edificio se integraría mejor en el lugar que un proyecto que cumpliera con las normas de construcción. Consiste en un volumen principal de nueve metros de ancho que, como estructura inclinada de casi cuarenta metros de largo, se aferra a la empinada ladera. Los pisos inferiores contienen apartamentos, mientras que la sección superior y el ala lateral de un solo piso albergan oficinas, estudios y almacenes.
The project required special permits: the municipal building authorities granted a special permit for the construction of four additional basement levels. The cantonal building authority considered the project to be a high-rise building; since the floor count starts with the lowest one above the basement, it had to approve the seventh as an exception.
El proyecto requirió permisos especiales: las autoridades municipales de construcción concedieron un permiso especial para la construcción de cuatro niveles de sótano adicionales. La dirección cantonal de construcción consideró el proyecto como un edificio de gran altura; dado que el recuento de plantas comienza con la más baja sobre el sótano, tuvo que aprobar la séptima como excepción.








Each of the apartments occupies the entire width of the house; in fact, they extend from floor to ceiling. A separate entrance via an external access staircase, ground-level exit to the south-east facing garden, a large roof terrace. The basic idea of the project, with each apartment displaced by one spatial element, led to a scheme of rooms of equal size. A continuous longitudinal central wall and recurring transverse dividing walls at an axial distance of 4.80 m form the interior structure. Element by element they are also displaced 30 cm from each other in height. This made it possible to adjust the inclination of the house to the given slope. This solution became an enrichment: from step to step, one climbs in the apartment up to the roof. This ‘climbing to the roof’, which opposes the slope, becomes a spatial element of tension. The dining room forms part of the upper living area. It opens onto the roof terrace, which is accessed via three more steps; the roof terrace serves as an additional living space for pleasant days, as it is protected from the wind and prying eyes by slatted side walls that follow the slope.
Cada uno de los apartamentos ocupa todo el ancho de la casa; en realidad conducen desde el suelo hasta el techo. Una entrada independiente a través de una escalera de acceso exterior, salida a nivel del suelo al jardín orientado al sureste, una gran terraza en la azotea. La idea básica del proyecto, con cada apartamento desplazado por un elemento espacial, condujo a un esquema de habitaciones de igual tamaño. Un muro central longitudinal continuo y muros divisorios transversales recurrentes a una distancia axial de 4,80 m forman la estructura interior. Elemento por elemento también están desplazados 30 cm entre sí en altura. Esto hizo posible ajustar la inclinación de la casa a la pendiente dada. Esta solución se convirtió en un enriquecimiento: de escalón en escalón, se sube en el apartamento hasta la azotea. Este “subir al tejado”, que se opone a la pendiente, se convierte en un elemento espacial de tensión. El comedor forma parte de la zona de estar superior. Se abre a la azotea, a cuyo nivel se accede por tres escalones más; la azotea sirve como espacio de estar adicional para los días agradables, ya que está protegida del viento y de las miradas indiscretas por las paredes laterales de listones que siguen la pendiente.













On the upper floors there are two smaller apartments of similar construction, both in the stairwell shared with the client’s offices in the side wing and the architect’s studio on the two upper floors. The garages facing Eierbrecht Street and the gardening company’s warehouses complement the modest appearance of the house. New paths were taken in terms of construction and material technology. The whole house was built inside and out of red brick.
En las plantas superiores hay dos apartamentos más pequeños de construcción similar, ambos en el hueco de la escalera compartido con las oficinas del cliente en el ala lateral y el estudio del arquitecto en las dos plantas superiores. Los garajes que dan a la calle Eierbrecht y los almacenes de la empresa de jardinería complementan la modesta apariencia de la casa. Se tomaron nuevos caminos en términos de construcción y tecnología de materiales. Toda la casa se construyó por dentro y por fuera con ladrillo rojo visto.
After we left this house with our architectural firm in 1968 and moved into our own terraced house on Flühgasse, the client had interior designer Kurt Thut convert the end section of the terraced house into his apartment.
Después de que dejáramos esta casa con nuestro estudio de arquitectura en 1968 y nos mudáramos a nuestra propia casa adosada en Flühgasse, el cliente hizo que el diseñador de interiores Kurt Thut convirtiera la sección final de la casa adosada en su apartamento.
Text via Claude Paillard, Bauten und Projekte 1946-1997. Monografien Schweizer Architekten und Architektinnen, 2002. Translated by Hidden Architecture


















