The spread of Islam occurred in the first millennium through various trading routes, particularly the Silk Road and sea trade routes in Eurasia, with the caravanserai serving as essential infrastructure for shelter and the exchange of ideas. Along these routes, there were a series of caravanserais, ancient lodges or inns that provided shelter, food, water, and security for merchants and their animals. They were more than just early roadside hotels. Beyond this practical function, they became centers of cultural, economic, and religious exchange. They were like small towns with their own rules.
La expansión del Islam se produjo durante el primer milenio a través de diversas rutas comerciales, en particular la Ruta de la Seda y las rutas marítimas de Eurasia. En ese contexto, los caravasares servían como una infraestructura esencial para el alojamiento e intercambio de ideas. A lo largo de estas rutas, existía una serie de caravasares, antiguas posadas o albergues que proporcionaban refugio, alimento, agua y seguridad a los comerciantes y sus animales. Eran más que simples hoteles de carretera: se convirtieron en centros de intercambio cultural, económico y religioso. Pequeñas ciudades con sus propias normas.

Caravanserais started way before the beginning of Islam. Its origin starts at least from the fifth century BCE, when the Persian Empire built a 2,500-kilometer road from Sardis (an ancient town now in Turkey) to Susa (in Iran), and built, at regular intervals along its length, stables with feed for horses, camels, and donkeys, as well as housing for the caravaneers who guided them. Later, in the Byzantine centuries, Christians began trading along that route, and by the 7th century and subsequent centuries, many of these merchants and travelers were already Muslims.
Los caravasares surgieron mucho antes del inicio del islam. Su origen se remonta al menos al siglo V a. C., cuando el Imperio persa construyó una carretera de 2500 kilómetros desde Sardes (una antigua ciudad hoy en Turquía) hasta Susa (en Irán), y erigió, a intervalos regulares a lo largo de su recorrido, establos con alimento para caballos, camellos y burros, así como alojamiento para los caravaneros que los guiaban. Más tarde, en el periodo bizantino, los cristianos comenzaron a comerciar a lo largo de esa ruta, y a partir del siglo VII, muchos de estos comerciantes comenzaron a ser musulmanes.
Therefore, caravanserais facilitated the diffusion of Islamic ideas, practices, and architecture far beyond the Arabian Peninsula. They served as nodes linking urban centers and rural areas, facilitating the spread of Islam alongside trade goods such as textiles and spices. Over time, the interaction between Muslim traders, local populations, and missionaries in and around caravanserais contributed to the conversion of local elites and communities in Central Asia, Persia, and South Asia.
Los caravasares facilitaron la difusión de las prácticas islámicas mucho más allá de la Península Arábiga. Sirvieron como nodos que conectaban centros urbanos y zonas rurales, facilitando la expansión del islam y el comercio de bienes como textiles y especias. Con el tiempo, la interacción entre comerciantes musulmanes, poblaciones locales y misioneros dentro y alrededor de los caravasares contribuyó a la conversión al islam de las élites y de las comunidades locales en Asia Central, Persia y el sur de Asia.

Architecturally speaking, these caravanserais were highly similar in both form and internal organization, whether in Morocco or India, in what could be called an early international style. Medieval Caravanserais referenced the design of square Roman forts, Persian palaces, and Central Asian family houses to produce a universal design theme. They had a courtyard in the center and were built with masonry materials, mud brick, fired brick ,or stone to create a structure, open to the sky but protected by high walls.
Arquitectónicamente, estos caravasares eran muy similares tanto en forma como en su organización interna, desde Marruecos hasta la India, en lo que podría llamarse un estilo internacional temprano. Tomaron como referencia el diseño de los fuertes romanos, los palacios persas y las casas familiares de Asia Central para crear una organización y morfología universal. Tenían un patio central y se construían con materiales de mampostería, adobe, ladrillo cocido o piedra para crear una estructura abierta al cielo y protegida por altos muros.

The structures were usually square or rectangular (though there were variations in shape, including octagonal or circular forms), surrounded by a massive wall with few or no windows to the outside. The courtyard in the center was open to the sky, with a surrounding arcade for selling or exchanging goods, and the rooms right against the walls. When the caravanserai had two storages, then the ground floor was used for storing merchandise or stabling camels, and the second floor had the rooms. Furthermore, there was usually a mosque to pray in, and sometimes, if the caravanserai was good enough, elaborate baths.
Las estructuras solían ser cuadradas o rectangulares (aunque existían variaciones formales, como octágonos o círculos), rodeadas por un muro macizo, con pocas o ninguna ventana al exterior. El patio central estaba abierto al cielo, con una arcada circundante para la venta o el intercambio de mercancías y las habitaciones adosadas a los muros. La planta baja se utilizaba para almacenar mercancías o alojar camellos, y la segunda planta albergaba las habitaciones. Además, solía haber una mezquita para rezar y, a veces, si el caravasar era lo suficientemente sofisticado, incluía baños.
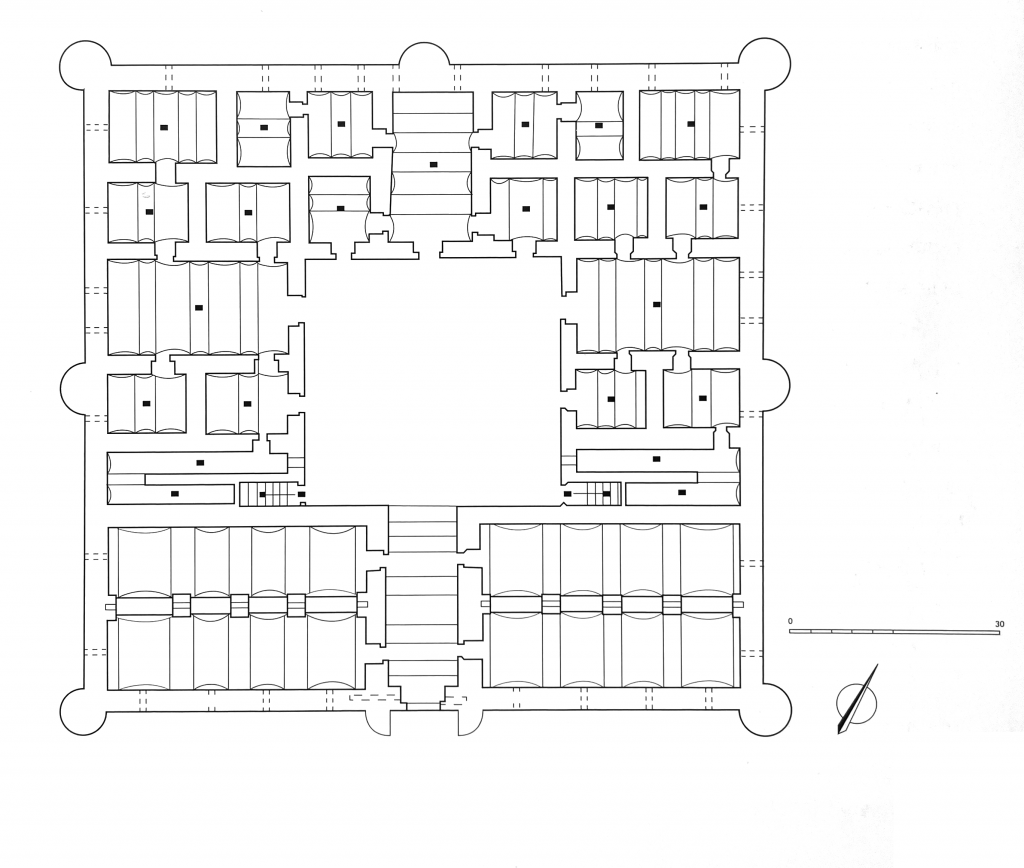
The Qasr al-Harrana (also known as Qsar Kharana) is one of the best-preserved caravanserais in Jordan, especially because it was built in the year 710. Located in the desert, about sixty-five kilometers east of Amman, halfway on the road to Azraq, and fifteen meters above the nearby wadi, or channel that only gets water during the rainy season, and connected to Wadi Sirhan in the Arabian Peninsula. It is roughly a square of 115 feet on each side, has two floors, and in its corners, an entrance has a series of solid towers to give the appearance of a powerful fortress, although they had no functional or defensive purpose. Visitors arriving at the caravanserai had to pass through a single large door, wide enough for camels to enter. Inside, a scribe recorded their names, hometowns, types of goods, and livestock counts. They then entered the courtyard, which was preceded by two large rooms, presumably used as camel stables and storage areas.
El Qasr al-Harrana (también conocido como Qsar Kharana) es uno de los caravansares mejor conservados de Jordania, especialmente considerando que fue construido en el año 710. Ubicado en el desierto, a unos sesenta y cinco kilómetros al este de Amán, a mitad de camino hacia Azraq, y a quince metros sobre el cauce cercano, que solo lleva agua durante la temporada de lluvias y conecta con el gran cauce de Sirhan en la península arábiga. Tiene una planta aproximadamente cuadrada de 35 metros de lado y dos pisos. En sus esquinas y en la entrada, este muro está flanqueado por una serie de sólidas torres que le dan la apariencia de una poderosa fortaleza, aunque no tenían ninguna función defensiva. Los visitantes que llegaban al caravasar debían pasar por una única puerta, lo suficientemente ancha como para que entraran los camellos. Dentro, un escriba registraba sus nombres, lugares de origen, tipos de mercancías y el número de animales. Luego accedían al patio interior, precedido por dos grandes salas, presumiblemente utilizadas como establos para camellos y almacenes.

The caravanserai, defined by its architectural elements and function, had an inherent contradiction: on one hand, it facilitated trading, exchange, and movement; and on the other, it was designed as a space of enclosure and seclusion. It was an independent, autonomous machine equipped with all the necessary functions, completely isolated from the outside, the unorganized, lawless realm. It was a living wall that organized the collectivity through a series of rules. Once the merchants crossed the main doors, they had to accept the regulations imposed by the head of the caravanserai. The caravanserai determined who could enter and under what terms.
El caravasar, definido por sus elementos arquitectónicos y su función, presentaba una contradicción inherente: por un lado, facilitaba el comercio, el intercambio y el movimiento; y por otro, estaba diseñado como un espacio de aislamiento. Era una máquina independiente y autónoma, equipada con todas las funciones necesarias y completamente aislada del exterior: “un mundo sin ley”. Era una muralla habitada que organizaba la colectividad mediante una serie de normas. Una vez que los mercaderes cruzaban las puertas principales, debían aceptar las regulaciones impuestas por el jefe del caravasar, quien determinaba quién podía entrar y bajo qué condiciones.

The defensive character of caravanserais on the outside contrasted with the splendor of the interior. Beyond providing food and rest, these places offered travelers the opportunity to exchange goods with other merchants. Symbolically, this building type functioned like a small city, governed by its own internal rules that shaped how guests interacted with one another. The austerity of the exterior gave way to a fertile, cultivated patio and even garden within. This architectural typology — an austere outer wall enclosing a habitable interior and a central courtyard like an oasis — appears repeatedly across Islamic architecture. It reveals, once again, the importance of architecture as a means of defining boundaries—physical and political.
El carácter defensivo de los caravasares en el exterior contrastaba con el esplendor de su interior. Además de proporcionar comida y descanso, estos lugares ofrecían a los viajeros la oportunidad de intercambiar mercancías con otros comerciantes. Simbólicamente, este edificio funcionaba como una pequeña ciudad, regida por sus propias normas internas que regulaban la interacción entre los huéspedes. La austeridad del exterior daba paso a un patio fértil. Esta tipología arquitectónica —una austera muralla exterior que encierra un interior habitable y un patio central a modo de oasis— se repite con frecuencia en la arquitectura islámica. Revela, una vez más, la importancia de la arquitectura como medio para definir límites, tanto físicos como políticos.




