This article is part of the Hidden Architecture Series “Tentative d’Épuisement”, where we explore the practice of an architectural criticism without rhetoric and based mainly on the physical experience of the work itself.
Este artículo forma parte de la serie “Tentativa de Agotamiento”, comisariada por Hidden Architecture, donde exploramos la práctica de una crítica arquitectónica ausente de retórica y fundamentada sobre todo en la experiencia física de la propia obra.
***
Like every day for the past two weeks, dawn broke gray, sad, and cool, with the morning shrouded in a thin, damp fog, evoking the memory of rain that never came. The varying density of atmospheric particles in suspension makes it difficult to see the Alps today, although the nearest mountain ranges are subtly hinted at intervals, whenever a latent sun manages to send us a beam of light. The linear gravel path runs along the ledge of this hillside overlooking Lake Zurich, with a south-facing orientation and an enviable view, weather permitting. The silence is dense but comfortable, as if cushioned by a strange warmth perhaps coming from the leaves of the trees painted in different autumnal tones. Our footsteps on the ground are the only echo that disturbs this morning calm, beyond a lethargic and distant urban murmur that is barely perceptible. Although the northern peaks and foothills of the Alps are gentler, with a quality close to the domestic, and certainly far removed from the dramatic peaks and glaciers further south, the omnipresence of their stone morphologies imbues this area of the city with a dreamlike quality. In winter, under almost constant snowfall, a bright white blanket rounds off and softens the sharp, geometric aridity of its relief, still so visible in October. Some people enjoy the tranquility of this Friday morning to walk their dogs along the cornice. Barely exchanging a glance with any of them as a timid greeting, we gradually leave the view of the Alps behind to explore a low-density suburban neighborhood with few urban qualities and no specific defining features, beyond its permanently fixed gaze on the distant peaks. The streets are deserted. Through the windows of a residence, an elderly man dressed in street clothes and looking impatient watches us, probably waiting for lunchtime, which in these latitudes always comes too early. The separation between buildings is wide, or at least wide enough for the network of interstitial vegetation to be denser than the residential fabric itself. Gaps in the prairies are frequent, creating strange disruptions in an already sparse urban activity. Between practically leafless treetops and the roofs of two-story multi-family dwellings, an extremely sharp pyramidal volume rises emphatically toward this ashen sky amid the clanging of bells: it is the Catholic church of Maria Kröhnung in Witikon.
Como cada jornada en las últimas dos semanas, el día amaneció gris, triste y fresco, con su mañana avanzando velada por una niebla tenue y húmeda, evocando el recuerdo de una lluvia que nunca llegó a acontecer. La densidad variable de partículas atmosféricas en suspensión dificulta hoy la visión de los Alpes, aunque las líneas de relieve más próximas se insinúan sutilmente a intervalos, cada vez que un sol latente consigue hacernos llegar algún haz de luz. El camino lineal de grava recorre la cornisa de esta ladera asomada al Zürichsee, con orientación sur y panorámica envidiable, siempre y cuando las condiciones climáticas lo permiten. El silencio es denso pero confortable, como acolchado por una extraña calidez quizá procedente de las hojas de los árboles pintadas en distintos tonos otoñales. Nuestras pisadas sobre el firme son el único eco que altera esta calma matinal, más allá de un aletargado y distante murmullo urbano apenas perceptible. A pesar de que los picos y estribaciones septentrionales de los Alpes son más amables, dotados de una cualidad próxima a lo doméstico, y desde luego muy alejados de las dramáticas cumbres y glaciares más meridionales, la omnipresencia de sus morfologías de piedra impregna esta zona de la ciudad de una cualidad onírica. En invierno, bajo unas nevadas casi constantes, un brillante manto blanco redondea y suaviza la aridez afilada y geométrica de sus relieves, todavía tan visibles en octubre. Algunas personas disfrutan de la tranquilidad de esta mañana de viernes para pasear con sus perros por la cornisa. Apenas cruzando una mirada con alguno de ellos a modo de tímido saludo, abandonamos progresivamente la visión de los Alpes para recorrer un barrio suburbano de baja densidad, con escasas cualidades urbanas y ningún rasgo específico que lo defina, más allá de su mirada permanentemente fijada en las cumbres distantes. Las calles están desiertas. A través de las ventanas de una residencia nos observa un señor de avanzada edad, vestido de calle y con talante impaciente, probablemente esperando la hora del almuerzo que, en estas latitudes, siempre sucede demasiado temprano. La separación entre edificios es amplia, o al menos lo suficiente como para que la red de vegetación intersticial sea más densa que el propio tejido residencial. Los claros de praderas son frecuentes, generando estos vacíos extrañas disrupciones en una actividad urbana ya de por sí escasa. Entre unas copas prácticamente desnudas de hojas y unos tejados de viviendas multifamiliares de un par de alturas, un volumen piramidal extremadamente afilado se yergue rotundo hacia este cielo ceniciento entre un estruendo de campanas: es la iglesia católica de Maria Kröhnung en Witikon.



The Swiss architect Justus Dahinden, who designed numerous religious buildings in both Europe and Africa, carried out one of his most emblematic projects in the early 1960s in his own neighborhood. Throughout his long and fruitful career, he developed a body of work of remarkable formal and conceptual coherence. In some of his writings, he extolled the importance of two ideas in the definition of his religious buildings. First, the idea of religious space in urban environments would be linked to the definition of a place, a place with a strong sense of territoriality. Secondly, the idea of this space as a path that transcends the limits of that territoriality. Unconsciously, the approach to the parish complex in the Witikon neighborhood began by tracing a long, ascending path from a point in the city with no immediate environmental connection.
Autor de numerosos edificios religiosos, tanto en Europa como en África, el arquitecto suizo Justus Dahinden ejecutó uno de sus proyectos más emblemáticos a inicios de la década de los 60, en su propio barrio de residencia. A lo largo de una dilatada y fructífera trayectoria, desarrolló una obra de una coherencia formal y conceptual notable. En alguno de los textos que dejó escritos, ensalzó la importancia de dos ideas en la definición de sus edificios religiosos. En primer lugar, la idea de espacio religioso en entornos urbanos estaría vinculada a la definición de un lugar, de un lugar con un fuerte sentido de territorialidad. En segundo lugar, la idea de este espacio como un camino que trasciende los límites de esa territorialidad. De forma inconsciente, la aproximación al conjunto parroquial del barrio de Witikon comenzó trazando un camino, ascendente y prolongado, desde un punto de la ciudad sin una conexión ambiental inmediata.
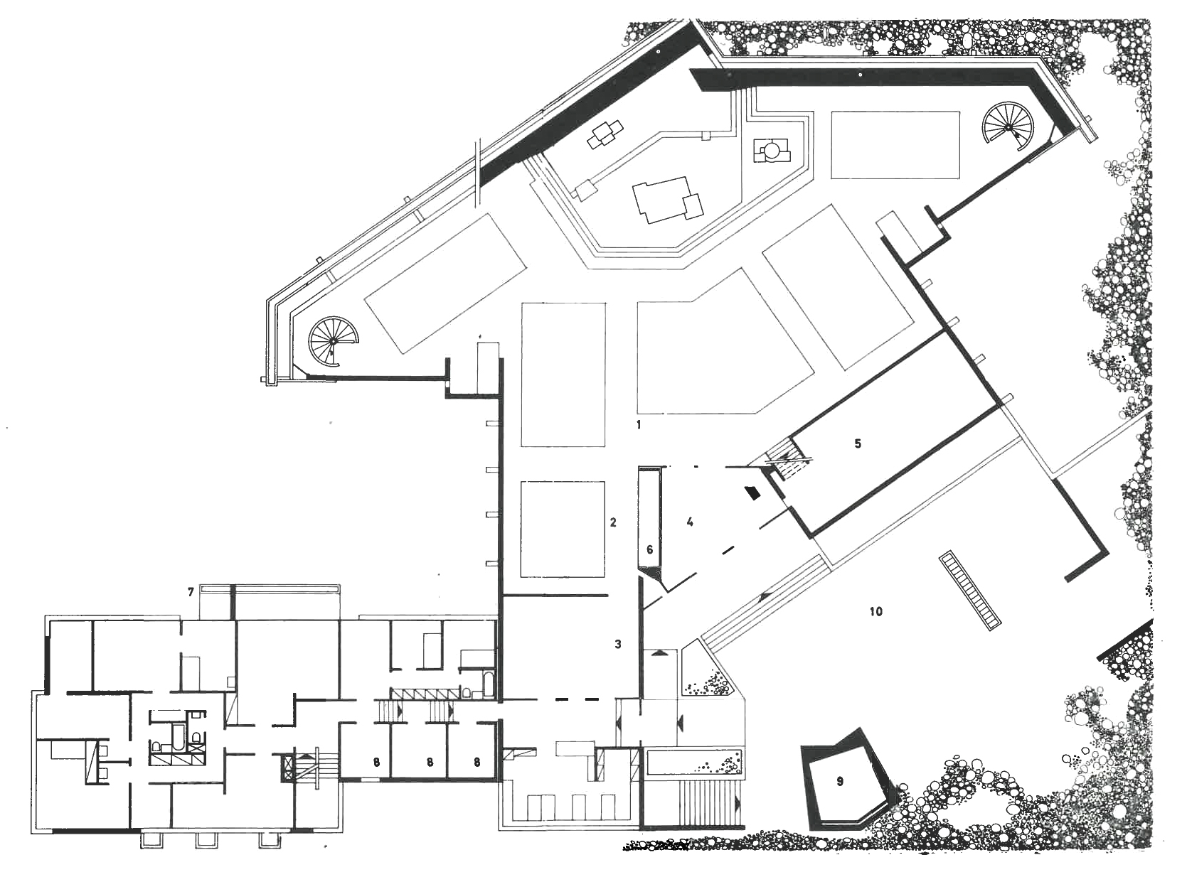
Despite its apparent fragmentation into different bodies and levels, the Maria Kröhnung parish complex is developed in a single volume. This volumetric articulation is particularly successful in terms of the urban relationships it generates with the surrounding buildings and streets: modest-scale dwellings and narrow streets on different levels, where a monolithic volume could have caused significant environmental distortion. However, from the moment the pyramidal bell tower in the shape of a spire comes into view, the hierarchical presence of the religious program is perceived: despite the articulation and stratification of the program and spaces on different levels, the parish complex manifests its territoriality by offering the city a community space for assembly. Two strategies are fundamental when it comes to controlling the scale of the complex and the impact of its volume. On the one hand, the articulation of the volume by means of small courtyards and parks, transitional spaces that consolidate the public vocation of the building, attempting to generate the quality of place in a dispersed and nondescript urban fabric. Secondly, the implementation of the program on a moderately sloping plot is used to stratify the spaces at different levels, activating the surrounding streets at different heights, a strategy that is reinforced by the organic transitions of the sloping roofs, giving a strong formal significance and, in addition, volumetric coherence to a complex that might otherwise have been too fragmented.
A pesar de su aparente fragmentación en diferentes cuerpos y niveles, el conjunto parroquial de Maria Kröhnung se desarrolla en un solo volumen. Dicha articulación volumétrica es especialmente exitosa en cuanto a las relaciones urbanas que genera con las edificaciones y calles aledañas: viviendas y estrechas calles en diferentes niveles con una escala humilde, donde un volumen monolítico podría haber generado una distorsión ambiental importante. Sin embargo, desde el momento en que se divisa el campanario piramidal en forma de aguja, se percibe la presencia jerárquica del programa religioso: a pesar de las operaciones de articulación y estratificación del programa y los espacios en diferentes niveles, el conjunto parroquial manifiesta su territorialidad ofreciendo a la ciudad un espacio comunitario para la asamblea. A la hora de controlar la escala del conjunto y el impacto de su volumetría dos estrategias serán fundamentales. Por un lado, la articulación del volumen mediantes pequeños patios y parques, espacios de transición en definitiva que consolidan la vocación pública del edificio, intentando generar la cualidad de lugar en un tejido urbano disperso y anodino. En segundo lugar, la implantación del programa en una parcela con pendiente moderada se aprovecha para estratificar los espacios a distintos niveles, activando las calles circundantes a diferentes cotas, estrategia que se reafirma con las transiciones orgánicas de las cubiertas de planos inclinadas, otorgando una fuerte pregnancia formal y, además, una coherencia volumétrica a un conjunto que de otra forma podría haber quedado deslavazado.






If the spire of the bell tower defines the center of this place’s territorial manifestation, it follows that the main orientation of the parish complex—calling it the main façade would make no sense here due to the multiple facets of spaces and volumes—is precisely where the bells now ring. With the aim of maximizing its visibility and sound range from a distance, the dome is located at the top of the plot, that is, on its northern side. From this highest point, the roof planes unfold and articulate to compose the parish complex, sloping downwards, and giving it the characteristic formal presence of a mountain range. This idea of unification and morphological coherence is further supported by the strict use of exterior cladding materials. Excluding the aluminum carpentry of the openings and entrances to the parish buildings, as well as their exposed concrete vertical walls, there are two elements that define the formal and material structure of the complex: a powerful concrete plinth that terraces and levels the ground from the north to the south, and the aforementioned faceted roof, clad with Eternit tiles that resemble traditional slate roofs.
Si la aguja del campanario define el centro de manifestación territorial de este lugar, se deduce que la orientación principal del conjunto parroquial – llamarlo fachada principal carecería aquí de sentido por la múltiple facetación de espacios y volúmenes – es precisamente aquella donde ahora tañen las campanas. Con el objetivo de maximizar su visibilidad y alcance sonoro desde la distancia, el cimborrio se sitúa en la parte superior de la parcela, esto es, en su orientación norte. A partir de esta cota más elevada, los planos de las cubiertas se despliegan y articulan hasta componer el conjunto parroquial, pendiente abajo, y otorgar esa característica presencia formal de macizo montañoso. Esta idea de unificación, de coherencia morfológica se apoya además en un estricto uso de los materiales de revestimiento exterior. Excluyendo las carpinterías de aluminio de huecos y accesos de las dependencias parroquiales, así como sus paramentos verticales de hormigón visto, existen dos elementos que definen la estructuración formal y material del conjunto: un poderoso zócalo de hormigón que aterraza y nivela el terreno desde la cara norte hacia la sur, y la ya mencionada cubierta facetada, revestida de una plaquetas de Eternit que se asemejan a las tradicionales tejados de pizarra.
The main access to the assembly space is via the north side of the complex, as evidenced by the insistent chimes. Despite the formal expressiveness of the roof plans, few urban elements seem to accompany the idea of a landmark, of an urban center. Barely a bus stop, consisting of a route sign and a bench where a woman waits impassively for the vehicle to arrive, and a few particularly well-kept private balconies add some warmth to a cold space that is also exposed to wind and damp currents. The fundamental articulation of the volume of the Maria Kröhnung parish complex takes place here, at the foot of the dome, defining an entrance courtyard to the church nave. Various parish and community rooms, as well as staircases connecting to the lower levels above which the nave rises, extend towards the city, embracing it and defining a pleasant space within its perimeter, a place of refuge, introverted, protected from the wind and rain, where the mineral geometries of the complex draw users closer to the building. With the dome located next to the sidewalk, it is necessary to go around one of its sides to access the courtyard, either through a kind of doorway defined by the material continuity of the roof ascending towards the upper spire, or through the more open side of the courtyard, which extends towards the city and takes on a more public character, like a small urban square.
El acceso principal al espacio de asamblea se realiza – la insistencia de las campanadas lo evidencia – por la cara norte del conjunto. A pesar de la expresividad formal de los planos de las cubiertas, pocos elementos urbanos parecen acompañar la idea de un hito, de un centro urbano. Apenas una parada de autobús, compuesta por un cartel de ruta y un banco donde una señora espera impasible la llegada del vehículo, y algunos balcones privados particularmente cuidados aportan algo de calidez a un espacio frío y, además, expuesto al viento y las corrientes húmedas. La articulación fundamental del volumen del conjunto parroquial de Maria Kröhnung se produce aquí, a los pies del cimborrio y para definir un patio de acceso a la nave de la iglesia. Diferentes estancias parroquiales y comunitarias, así como escaleras que comunican con los niveles inferiores sobre los que se eleva la nave, se extienden hacia la ciudad abrazándola, definiendo en el interior de su perímetro un amable espacio de estancia, un lugar de refugio, introvertido, protegido del viento y la lluvia, donde las geometrías minerales del conjunto se aproximan a los usuarios del edificio. Colocado el cimborrio junto a la acera, es necesario rodearlo por uno de sus lados para acceder al patio, bien por una especie de portada definida por la propia continuidad material de la cubierta ascendiendo hacia la aguja superior, bien por la cara más abierta del patio, que prolongandose hacia la ciudad adquiere un carácter más público, de pequeña plaza urbana.






The idea of defining an urban space by affirming its territoriality seems evident in this series of volumetric operations with a significant urban impact. With the architect’s words about the idea of the urban church as a path still echoing in our minds, we decline the kind invitation to walk around the perimeter of the north courtyard, descending towards the south. In this circular movement around the different volumes and levels that structure the parish complex designed by Justus Dahinden, some of the themes already intuited on the north side become clearer. If the different staircases descending from the north courtyard revealed the programmatic stratification on different levels, from the south side of the plot this operation consolidates the volumetric idea of the project. The community spaces, such as classrooms for children, workshops, and a cafeteria, are located on the lower level of the complex, open to different parks and interconnected public spaces, seeking the sun and light denied on the upper north-facing street. This set of spaces and social services constitutes the plinth on which the church nave sits, as well as the dome and the upper access courtyard. This stratification of the program is emphasized by the articulation of the different architectural elements. The concrete plinth, which defined the contact with the ground on the north side, is raised and cantilevered by powerful beams over a transparent and light façade, offering an open visual relationship between the social spaces of the complex and the urban environment. The body of the nave, faceted like a mountain peak and completely opaque in the blackness of its cladding, seems to levitate above the porticoed space defined by the concrete beam system, acquiring its maximum degree of formal abstraction. The ambiguous relationship between the volumes of the faceted roofs and those that house dwellings and parish offices, defined by a cubic geometry, causes a break in the formal coherence of the complex, although on the other hand it adds a small-scale urban complexity that mitigates what could have been excessive monumentality and, consequently, an overly imposing affirmation of the territorial definition of the complex.
La idea de definir un lugar urbano afirmando su territorialidad parece evidente con esta serie de operaciones volumétricas de gran impacto urbano. Resonando todavía en nuestra memoria las palabras del arquitecto sobre la idea de iglesia urbana como un camino, declinamos por ahora la amable invitación del patio norte de acceso para caminar y rodear el perímetro descendiendo hacia el sur. En este movimiento circular alrededor de los diferentes volúmenes y niveles en que se estructura el conjunto parroquial proyectado por Justus Dahinden, alguno de los temas intuidos ya en la cara norte se manifiestan con mayor nitidez. Si las diferentes escaleras que descienden desde el patio norte evidenciaban la estratificación programática en diferentes niveles, desde la cara sur de la parcela esta operación consolida la idea volumétrica del proyecto. Los espacios comunitarios, como aulas para niños, talleres y cafetería se encuentran en el nivel inferior del conjunto, abiertos a distintos parques y espacios públicos concatenados y buscando un sol y una luz negados en la calle superior orientada al norte. Este conjunto de espacios y servicios sociales constituyen el plinto sobre el que se asienta la nave de la iglesia, así como el cimborrio y el patio de acceso superior. Esta estratificación del programa se enfatiza con la articulación de los diferentes elementos arquitectónicos. El zócalo de hormigón, que definía el contacto con el suelo en la cara norte, se eleva y vuela gracias a unas poderosas vigas en voladizo sobre una fachada transparente y ligera, ofreciendo una relación visual abierta entre los espacios sociales del conjunto y el entorno urbano. El cuerpo de la nave, facetado como un pico montañoso y completamente opaco en la negrura de su revestimiento, parece levitar sobre el espacio porticado definido por el sistema de vigas de hormigón, adquiriendo su máximo grado de abstracción formal. La relación ambigua entre los volúmenes de las cubiertas facetadas y aquellos que albergan viviendas y oficinas parroquiales, definidos por una geometría cúbica, provoca una ruptura en la coherencia formal del conjunto, aunque por otro lado añade una complejidad urbana a pequeña escala que mitiga lo que podría haber resultado una monumentalidad excesiva y, por consiguiente, una afirmación demasiado imponente de la definición territorial del conjunto.


The chromatic explosion of the trees in autumn, with their vibrant yellow leaves, creates an alpine landscape atmosphere, where the edges and vertices of the roof resemble mountainous reliefs, reduced in scale and stranded in the middle of this suburban neighborhood, like a model representation for some kind of theme park. The formal abstraction of its volume gives it an iconic presence that determines the necessary hierarchy of a public and community building in streets lacking urban identity. The rustling of the leaves on the trees, swaying to the rhythm of a light but cold breeze, mingles with the sudden impacts of those that fall forever from their host branch to land on asphalt as black as the roof of the parish complex. This autumn symphony is interrupted by a small bus climbing the street, occupied only by a few elderly people, perhaps coming from the nursing home we left behind a few minutes ago. Taking advantage of this brief interlude, we climb back up to the north side of the complex, winding our way between the autumn trees and the concrete walls that, broken and arranged as if drawing a hopscotch court on the hillside, delimit the public road from the gardens and courtyards of rest and transition to the community base of the Maria Kröhnung parish center.
La explosión cromática de los árboles en otoño con sus hojas centelleantes de un amarillo vibrante, compone una atmósfera de paisaje alpino, donde las aristas y vértices de la cubierta se asemejan a relieves montañosos, reducidos de escala y varados en medio de este barrio suburbano, como una representacion modélica para algún tipo de parque temático. La abstracción formal de su volumen le otorga una presencia icónica que determina la necesaria jerarquía de un edificio público y comunitario en unas calles carentes de identidad urbana. El roce de las hojas en los árboles, mecidas al compás de una ligera pero fría brisa, se confunde con los súbitos impactos de aquellas que se desprenden para siempre de su rama huesped para caer sobre un asfalto negro como la cubierta del conjunto parroquial. Esta sinfonía de otoño se ve interrumpida por un pequeño autobús que asciende la calle, ocupado tan solo por unas cuantas personas de avanzada edad, procedentes quizá de la residencia que hace minutos dejamos atrás. Aprovechando este breve interludio, ascendemos de nuevo a la cara norte del conjunto, serpenteando entre el otoño de los árboles y los muros de hormigón que, quebrados y dispuestos como dibujando una rayuela en la ladera, delimitan el viario público de los jardines y patios de estancia y transición hacia el zócalo comunitario del centro parroquial de Maria Kröhnung.
Is the idea of the urban church as a path perhaps manifested in this analogy, this formal relationship between the geomorphically inspired volumes of the roofs and the alpine landscapes that dominate the Witikon corniche from a distance? If the abstract rotundity of its forms successfully defines an urban and territorial hierarchy in a neighborhood without specific attributes, it seems plausible to imagine that the architect thought that the starting point, the beginning of the path that would define his religious and community space, transcended the physical and administrative limits of Zurich; that in the absence of a clear reference in its immediate context, he sought to establish a distant and silent dialogue with the Alpine mountain range.
¿Se manifiesta la idea de iglesia urbana como camino quizá en esta analogía, esta relación formal entre los volúmenes de inspiración geomórfica de las cubiertas y los paisajes alpinos que dominan la cornisa de Witikon desde la distancia? Si la rotundidad abstracta de sus formas define con éxito una jerarquía urbana y territorial en un barrio sin atributos específicos, parece plausible imaginar que el arquitecto pensara que el punto de partida, el inicio del camino que definiría su espacio religioso y comunitario trascendiese los límites físicos y administrativos de Zürich;, que a falta de una referencia clara en su contexto próximo buscara establecer una diálogo distante y silencioso con la cordillera de los Alpes.





Walking on the soft carpet of fallen leaves on the ground invites us to ponder these ideas as we reach the north entrance courtyard again, now resting in the silence of the bells awaiting the next hourly chime. We enter through the arch that the black roof traces until it joins the dome and extends to the top of its spire. This small formal gesture, timid even in a project rich in complex constructive and volumetric articulations, defines the definitive threshold of access to the space of prayer and assembly through this secluded but silent courtyard. The different elements that make up the pavement and the concrete plinth on which the roof rests are broken down into numerous levels, ascending sloping surfaces, steps, or low walls. Their hard, cold materiality creates a landscape closer to a mountain valley than to the urban landscape of a city. On the other hand, the silent abstraction of each element is such that the only perceptible trace of industrial construction is the joints between the panels and doors at the entrance, where only a few heavy horizontal handles, as wide as the door itself, reveal human activity. As on the lower level, which faces south and heralds the community spaces facing the city, the roof overhang also defines a kind of portico at this entrance, which in this case extends further, defining a cloister in part of the irregular perimeter of the courtyard. Imagining people gathered together, sheltered from the rain and wind, chatting before or after each funeral in this convent-like courtyard, albeit open to the city, we trace the circular movement under the protection of the roof to ascend to the threshold and enter the church.
Caminar pisando la mullida alfombra de hojas caídas sobre el suelo invita a divagar por estas ideas mientras alcanzamos de nuevo el patio norte de acceso, ahora en reposo por el silencio de las campanas que aguardan la próxima llamada horaria. Accedemos por el arco que la cubierta negra traza hasta unirse con el cimborrio y prolongarse hasta lo alto de su aguja. Este pequeño gesto formal, tímido incluso en un proyecto rico en complejas articulaciones constructivas y volumétricas, define el umbral de acceso definitivo al espacio de rezo, de asamblea, a través de este recogido pero mudo patio. Los distintos elementos que componen el pavimento y el zócalo de hormigón sobre el que vuela la cubierta se descomponen en numerosos niveles, superficies en pendiente ascendente, escalones o muretes. Su materialidad dura y fría compone un paisaje más próximo a un valle de montaña que al urbano propio de una ciudad. Por otro lado, la muda abstracción de cada elemento es tal que el único rastro perceptible de factura industrial son las juntas de paneles y puertas en el frente de acceso, donde tan solo unos pesados tiradores horizontales, cuyo ancho es el de la propia puerta, revela una actividad humana. Al igual que sucedía en el nivel inferior, orientado a sur y anunciando los espacios comunitarios volcados a la ciudad, el vuelo de la cubierta define en este acceso también una suerte de pórtico, que en este caso se extiende además definiendo, en parte del perímetro irregular del patio, un claustro. Imaginando a la gente reunida al abrigo de la lluvia y el viento, charlando antes o después de cada sepelio en este patio de vocación conventual, si bien abierto a la ciudad, trazamos el movimiento circular bajo la protección de la cubierta para ascender hasta el umbral y entrar en la iglesia.









The strategy of stratifying spaces and programs on different levels throughout the sloping plot mitigates, as already mentioned, the volumetric impact of a building of considerable dimensions which, on the other hand, also needs to express its community hierarchy in the urban space. However, despite displaying a very successful control of scale, the expressive abstraction of its forms anticipates interiors where the change of scale is manifested, in contrast to the exterior restraint, with a drama of a sublime nature. After passing through the entrance doors, visitors find themselves in a small lobby, whose horizontal dimensions and, especially, its very low ceiling height, create a pronounced sense of spatial compression. This small vestibule, antechamber, or hallway is practically dark, illuminated only indirectly by the strip of light that filters through the gap created by the roof overhang above the concrete plinth, materialized here by a sloping horizontal band of glass that serves as a guide, we understand, to complete the reverse journey from the interior of the church to the exterior. Despite the relative warmth offered by the shade, the feeling of unease that defines the oppressive spatiality of this enclosure clearly reveals its function: this is not a space for lingering. On the contrary, this antechamber is nothing more than a spatial operation which, distancing us from the light and openness of the urban space of the path we have traced to get here, with the ever-present distant peaks, perceptively prepares us to complete our journey and, with our eyes still adjusting to the darkness, to enter the space that culminates and gives meaning to the whole.
La estrategia de estratificar los espacios y programas en diferentes niveles a lo largo de la parcela en desnivel consigue mitigar, como ya se ha dicho, el impacto volumétrico de un edificio de dimensiones considerables que, por otro lado, necesita además manifestar su jerarquía comunitaria en el espacio urbano. Sin embargo, a pesar de hacer gala de un control de la escala muy conseguido, la expresiva abstracción de sus formas anticipan unos interiores donde el cambio de escala se manifieste, en contraste con la contención exterior, con un dramatismo de naturaleza sublime. Bien, tras franquear las hojas de acceso, el visitante se halla en un pequeño vestíbulo, cuya dimensión horizontal y, especialmente, una altura muy reducida, provocan una acentuada sensación de compresión espacial. Este pequeño vestíbulo, antecámara o zaguán, se encuentra prácticamente a oscuras, iluminado indirectamente solo por la franja de luz que se cuela a través de la brecha que provoca el vuelo de la cubierta sobre el zocalo de hormigon, materializado aquí por una banda horizontal inclinada de vidrio que sirve de guia, entendemos, para culminar el trayecto inverso de salida desde el interior de la iglesia hacia el exterior. A pesar de la relativa calidez que la sombra nos ofrece, la sensación de desasosiego que define la espacialidad opresora de este recinto evidencia de manera clara su función: éste no es un espacio de estancia. Por el contrario, esta antecámara no es más que una operación espacial que, alejándonos de la luz y la apertura del espacio urbano del trayecto trazado hasta llegar aquí, con la presencia siempre constante de las lejanas cumbres, nos prepara perceptivamente para culminar nuestro recorrido, y acceder, con los ojos todavía acostumbrándose a la penumbra, al espacio que culmina y da sentido a todo el conjunto.




The silence can almost be touched when you reach out your hand. The black slate paving slabs slope gently down towards the altar, tracing a movement that is the reverse of the slight ascent that led us here from the courtyard. The sturdy, elegant wooden benches contrast with the lucidity of their skin on the earthy floor, and together with the slate they form an almost terraced plane, a gentle topography that culminates at the foot of the altar platform. If from the outside the faceted planes of the roofs reminded us of the distant peaks of the Alps, this intuition is confirmed inside the church: we find ourselves inside the earth, inside a mountain. Once the view, now enhanced by the atmospheric softness woven by the dim light, rises and rises above the floor level, the formal or functional references to an ordinary architectural space disappear. The interior of the nave expands, occupying the articulations of the volume that created courtyards and gardens on the outside, thus defining an assembly space that resembles an open palm tree in plan, with irregular niches converging towards the altar. The mineral-inspired formal language that sculpted the mountainous volume of the parish complex on the outside finds its maximum degree of expressiveness here. Beyond the front that houses the organ, we find no vertical planes inside the nave. As if it were an inhabited cave, the space is delimited by an articulation of faceted planes clad in vertically arranged wooden boards. At the junction of their edges, openings are revealed like geological features through which light filters, drawing a dense stream in the air that looks like a spring of water filtering from an icy peak to the center of the earth. In addition to defining the fundamental events that take place in the liturgy, the work with light takes on another highly relevant function: to nullify the effect of gravity in a mineral space, constructing a dreamlike atmosphere that challenges our capacity for spatial perception. The flight of the geomorphic roof over a concrete plinth was an obvious theme from the outside. However, beyond the articulation of the volume and taking advantage of the possibility of displacements supported by the powerful concrete structure to construct transitional rooms and access thresholds on the outside, the apparent geometric fracture between the plinth and the roof is clearly evident on the inside. A continuous crack of light runs along the edges where the concrete meets the roof planes, a dense and concentrated light that blurs any point of support from a distance, creating the illusion of surprising weightlessness from the very center of the shadow.
El silencio casi puede acariciarse al extender la mano. El pavimento de plaquetas de pizarra negra desciende ligeramente en dirección al altar, trazando un movimiento inverso al ligero ascenso que desde el patio nos condujo hasta aquí. Los robustos y elegantes bancos de madera contrastan por la lucidez de su piel sobre el suelo telúrico, y componen con la pizarra un plano casi aterrazado, una topografía suave que culmina el camino a pies de la plataforma del altar. Si desde el exterior los facetados planos de las cubiertas nos habían recordado por similitud a las cumbres lejanas de los Alpes, la intuición se confirma en el interior de la iglesia: nos encontramos en el interior de la tierra, de una montaña. Una vez la vista, cuidada ahora por la suavidad atmosférica que teje la tenue luz, asciende y supera el plano de suelo, las referencias formales o funcionales a un espacio arquitectónico ordinario desaparecen. El interior de la nave se expande ocupando las articulaciones del volumen que generaban patios y jardines en el exterior, definiendo por tanto un espacio de asamblea que en planta se asemeja a una palma abierta, con nichos irregulares que convergen hacia el altar. El lenguaje formal de inspiración mineral que esculpió al exterior el volumen montañoso del conjunto parroquial encuentra aquí el grado máximo de su expresividad. Más allá del frente que alberga el órgano, no encontraremos en el interior de la nave ningún plano vertical. Como si de una cueva habitada se tratase, el espacio se delimita por una articulación de planos facetados revestidos de tablas de madera dispuestas en vertical. En la unión de sus aristas, se revelan aperturas como accidentes geológicos a través de las cuales se filtra la luz, dibujando en el aire una densa corriente que bien parece un manantial de agua que desde una gélida cumbre se filtrase al centro de la tierra. Además de definir los acontecimientos fundamentales que se suceden en la liturgia, el trabajo con la luz asume una función todavía de gran relevancia: anular el efecto de la gravedad en un espacio mineral, construyendo una atmósfera onírica que tensiona nuestra capacidad de percepción espacial. El vuelo de la cubierta geomórfica sobre un zócalo de hormigón fue un tema evidente desde el exterior. Sin embargo, más allá de la articulación del volumen y de aprovechar la posibilidad de desplazamientos apoyados sobre la poderosa estructura de hormigón para construir estancias de transición y umbrales de acceso en el exterior, la aparente fractura geométrica entre plinto y cubierta se manifiesta claramente en el interior. Una grieta de luz continua recorre las aristas de unión entre el hormigón y los planos de la cubierta, una luz densa y concentrada que difumina desde la distancia cualquier punto de apoyo, que genera la ilusión de una ingravidez sorprendente desde el mismo centro de la sombra.
Perhaps aware that he has reached the end of the road, an elderly man with limited physical mobility walks up the slate slopes with laborious clumsiness. Judging by his unkempt clothing, he appears to be a local resident who probably visits this place every day. Stoically overcoming the insecurity that his own body seems to cause him, he never looks down at the ground. Absorbed by the streams of light that filter into this cavern, he walks through every corner of the church, dragging his feet but with his head held high in a continuous low-angle shot. With his hands behind his back, a cap and a newspaper clutched tightly, he leaves the church to return to the city, perhaps rescuing from his memory, in this transition, the alpine landscapes of his childhood.
Sintiéndose quizá consciente de haber alcanzado el final de un camino, un hombre de avanzada edad y movilidad física limitada recorre las pendientes de pizarra con esforzada torpeza. Por lo descuidado de su vestimenta, se diría que se trata de un vecino del barrio que, posiblemente, acceda a este espacio cada día. Sobreponiéndose estoicamente a la inseguridad que su propio cuerpo parece provocarle, no dirige su mirada en ningún momento hacia el plano del suelo. Abstraído por los manantiales de luz que se infiltran en esta caverna, recorre cada rincón de la iglesia arrastrando los pies, pero con la cabeza bien erguida en un contrapicado continuo. Las manos a la espalda, una gorra y un periodico agarrados con firmeza, abandona la iglesia para regresar a la ciudad, rescatando quizá de su memoria, en este tránsito, los paisajes alpinos de su infancia.














