This article is part of the Hidden Architecture Series “Tentative d’Épuisement”, where we explore the practice of an architectural criticism without rhetoric and based mainly on the physical experience of the work itself.
Este artículo forma parte de la serie “Tentativa de Agotamiento”, comisariada por Hidden Architecture, donde exploramos la práctica de una crítica arquitectónica ausente de retórica y fundamentada sobre todo en la experiencia física de la propia obra.
***
A brief, intense and unpredictable early autumn downpour has left the city covered in a sheet of water that now reflects the rays of a sun that timidly peeks through dark, dense clouds. Some leaves on the trees had begun to turn yellow at their tips, anticipating their fall after an unusually mild September. Knocked down by the wind and the downpour, many lie on the pavement, weaving a wet and slippery carpet. At this time of the morning, the Wiedikon neighbourhood stretches lazily with the calm of someone who expects nothing. Located outside the historic centre of Zurich, this popular urban district stretches between the Sihl river and the wooded mass that rises towards Uetliberg, the domestic mountain peak that governs the Swiss city. The urban fabric corresponds to what we understand as a typical 19th-century urban expansion, where rectangular city blocks, filled with different buildings around interior courtyards, are structured around a Cartesian road network punctuated by small parks or public squares. Descending from Lochergut along Sihlfeldstrasse, a small triangular square invites you to pause for a moment to enjoy the dense trees, from whose canopy the rainwater that had been held back in the heights now pours down furiously. Vibrant with people and noise yesterday at dusk, this secluded urban space reflects the social spectrum of this area of the city: alternative young people, migrants from various backgrounds and a strong presence of Orthodox Jewish families. Connected to it at one of its corners, a larger urban void, also triangular in shape, extends southwards, bordered on all sides by residential buildings. Occupying its centre, behind the trunks of a dense row of trees, is the Wiedikon Kindergartenhaus.
Un aguacero de principios de otoño, breve, intenso e impredecible, ha dejado la ciudad cubierta de una lámina de agua que ahora refleja los rayos de un sol que, tímido, se asoma fugazmente a través de una nubosidad oscura y densa. Algunas hojas en los árboles habían comenzado a amarillear en sus puntas, anticipando su caída tras un mes de septiembre inusualmente templado. Abatidas por el viento y la tromba de agua, muchas yacen sobre el pavimento tejiendo una moqueta húmeda y resbaladiza. A estas horas de la mañana, el barrio de Wiedikon se despereza con la calma de quien no espera nada. Situado fuera del recinto histórico de Zürich, este popular distrito urbano se extiende entre el cauce del río Sihl y la masa boscosa que asciende hacia Uetliberg, la doméstica cima montañosa que gobierna la ciudad suiza. El tejido urbano se corresponde con lo que entendemos por un ensanche urbano propio del siglo XIX, donde manzanas urbanas rectangulares, colmatadas por diferentes edificaciones en torno a patios interiores, se estructuran a partir de un viario cartesiano puntuado por pequeños parques o plazas públicas. Descendiendo desde Lochergut por Sihlfeldstrasse, una pequeña plaza triangular invita a detenerse por la densidad de su arboleda, copas desde las que ahora se precipita con furia el agua de lluvia que quedó retenida en las alturas. Vibrante de gente y alboroto ayer al atardecer, este recóndito espacio urbano refleja el espectro social de esta zona de la ciudad: jóvenes alternativos, migrantes de diversas procedencias y una fuerte presencia de familias judías ortodoxas. Concatenado a él por uno de sus vértices, un vacío urbano más extenso, también de geometría triangular, se extiende en dirección sur delimitado en todos sus lados por edificios residenciales. Ocupando su centro, tras los troncos de una densa hilera de árboles, se encuentra la Kindergartenhaus de Wiedikon.




Designed and built in the late 1920s by Hans Hoffman and Adolf Hellermüller, this nursery is one of the most brilliant examples of pre-World War II modern architecture in the city of Zurich. Its location in the urban fabric of Wiedikon clearly reflects its hygienist principles. Seemingly aligned with the existing road network, its volume is articulated to make the most of the different orientations, reinforcing the sense of openness on the east-west axis. At the time of its construction, the modern building, displaying a radically modern language, defined a centre of gravity in an environment characterised environmentally by a majority of traditional buildings, in which elements such as mansard roofs, balconies and eaves with dormer windows gave it a serene and distinguished style. This contrast is mitigated, however, by the fact that the same architectural team built blocks of flats that delimited the urban void in its south-west orientation. These buildings, which were constructed at the same time as the educational building, share some of the modern elements that characterise the urban presence of the nursery. While delimiting the square, their façades, where windows and balconies take on a notable prominence, articulate the purist language of the Kindergartenhaus with the compositional rhythms of nineteenth-century buildings, creating an urban harmony of unusual complexity. The commercial premises on the ground floor of the square reflect the multicultural nature of this area of the city. Cultural association premises are combined with small Indian, Italian and Spanish restaurants. The main entrance to the nursery, located at its northern corner, features a gabled pediment raised above the porch that transitions between the exterior and interior. This curious composition, whose elements refer more to domestic than institutional architecture, together with the trees lining the street, create a pleasant urban lounge.
Diseñada y construida a finales de los años 20 por Hans Hoffman y Adolf Hellermüller, esta guardería supone uno de los ejemplos más brillantes de la arquitectura moderna previa a la Segunda Guerra Mundial en la ciudad de Zürich. Su implantación en el tejido urbano de Wiedikon refleja con claridad sus postulados higienistas. Aparentemente alineada al viario existente, su volumen se articula para sacar el máximo partido de las distintas orientaciones, reforzando el sentido de apertura en el eje este-oeste. En el momento de su construcción, el moderno edificio, haciendo gala de un lenguaje radicalmente moderno, definió un centro de gravedad en un entorno caracterizado ambientalmente por una mayoría de edificaciones de carácter tradicional, en las que elementos como las mansardas, balcones o faldones de cubiertas con buhardillas otorgaban un estilo sereno y distinguido. Este contraste se mitiga, sin embargo, por el hecho de que el mismo equipo de arquitectura construyó unos bloques de viviendas que delimitaban el vacío urbano en su orientación suroeste. Estos edificios, cuya ejecución se desarrolló en paralelo a la del edificio educativo, comparten algunos de los elementos modernos que caracterizan la presencia urbana de la guardería. Mientras delimitan la plaza, sus fachadas, donde ventanas y balcones adquieren un protagonismo notable, articulan el lenguaje purista de la Kindergartenhaus con los ritmos compositivos de los edificios decimonónicos, construyendo una armonía urbana de una complejidad poco usual. En los bajos comerciales de la plaza se evidencia la multiculturalidad de esta zona de la ciudad. Locales de asociaciones culturales se combinan con pequeños restaurantes indios, italianos o españoles. El acceso principal de la guardería, ubicado en su vértice norte, presenta un frontón a dos aguas elevado sobre el porche de transición entre exterior e interior. Esta curiosa composición, cuyos elementos se refieren más a una arquitectura doméstica que a una institucional, construyen junto a la arboleda de la calle un agradable salón urbano.





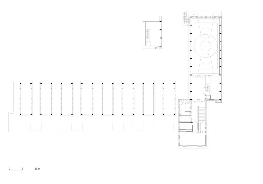
The Wiedikon Kindergartenhaus has an L-shaped floor plan, with its two perpendicular wings aligned with the surrounding roads from the entrance corner. The longer wing, which is lower in height and has a clear horizontal orientation, houses the nursery classrooms. On the other hand, the shorter arm, which is taller and on a scale that dialogues with the adjacent residential buildings, currently houses the administrative spaces and the gymnasium. The point where these two volumes converge, and through which all the building’s circulation routes are articulated, is composed of a volume of intermediate scale between the main bodies. Although the interior distribution atrium has a square floor plan, the volumetric extension of the entrance porch gives it more elongated proportions that formally relate it, at least from the outside, to the more urban volume of the programme, leaving the classroom wing in a secondary position, more secluded behind the tree-lined avenue, and with a more intimate scale. This articulation of volumes, with simple operations of Cubist ancestry, defines a scale of friendly, almost intimate qualities that distances itself from the solemnity of the institutional buildings typical of its historical period. The different proportions of the volumes, which are joined at the entrance corner, are not the only resources used to “urbanise” the public programme of the nursery. Surrounding the perimeter, ignoring for the moment the invitation to enter the porch, one can appreciate the number of architectural elements that, accentuating the more open character of the larger volume, define the building’s openness to the city. Thus, the westernmost part is charged with urban quality through the appearance of staircases or balconies that construct a dialogue of transition between the domestic and civic spaces of the city and the public programme of the educational building. Above all, the use of the roof eaves as a linguistic resource in this articulation stands out. Running along the edges of each volume of the Kindergartenhaus, the line of a slender eave seems to yearn to unify the difference in scale and volume of each body. Beyond that, the same element is transferred to the residential buildings flanking the nursery to the west, establishing an environmental connection that integrates this new domestic architecture with the language of the pre-existing buildings.
La Kindergartenhaus de Wiedikon presenta un esquema en planta en forma de L, con sus dos brazos perpendiculares alineados al viario circundante desde la esquina de acceso. El brazo más largo, de menor altura y una clara direccionalidad horizontal, alberga las aulas de la guardería. Por otro lado, el brazo más corto, de mayor altura y con una escala que dialoga con los edificios residenciales adyacentes, acoge en la actualidad los espacios administrativos y el gimnasio. El punto en que convergen estos dos volúmenes, y a través del cual se articulan todas las circulaciones del edificio, está compuesto por un volumen de escala intermedia entre los cuerpos principales. Aunque el atrio de distribución interior tiene una geometría en planta cuadrada, la prolongación volumétrica del porche de acceso le otorga unas proporciones más alargadas que lo emparentan formalmente, al menos desde el exterior, con el volumen de programa más urbano, dejando el ala de las aulas en una posición secundaria, más retirada tras la alameda de árboles, y con una escala más íntima. Esta articulación de volúmenes, con sencillas operaciones de ascendencia cubista, define una escala de cualidades amables, casi íntimas, que se distancia de la solemnidad de los edificios institucionales propios de su tiempo histórico. Las diferentes proporciones de los volúmenes, que se maclan en la esquina de acceso, no son los únicos recursos empleados para “urbanizar” el programa público de la guardería. Rodeando el perímetro, desoyendo por el momento la invitación de acceso del porche, se aprecia la cantidad de elementos arquitectónicos que, acentuando el carácter más abierto del volumen de mayores dimensiones, definen la apertura del edificio a la ciudad. Así, la parte más occidental se carga de cualidad urbana mediante la aparición de escaleras o balcones que construyen un diálogo de transición entre los espacios domésticos y cívicos de la ciudad con el programa público del edificio educativo. Por encima de ello, destaca la utilización del alero de la cubierta como recurso lingüístico en esta articulación. Recorriendo las aristas de cada volumen de la Kindergartenhaus, la línea de un esbelto alero parece anhelar unificar la diferencia de escala y de volumen de cada cuerpo. Más allá de eso, el mismo elemento se traslada a los edificios de viviendas que flanquean la guardería al oeste, estableciendo una conexión ambiental que integra esta nueva arquitectura doméstica con el lenguaje de los edificios preexistentes.








During this urban stroll, the sky has transitioned to a calmer state, where the sun seems to shine without the inhibition of before. This autumnal light, with a hue that still recalls the recently exhausted summer, imbues the neutrality of the urban façades of the Kindergarten Wiedikon with a stimulating dynamism. The different volumetric articulations are populated with chiaroscuro in their contact areas, while the shadows cast by the trees on the façade canvases resemble brushstrokes of movement. Part of this oscillation is also transferred to the composition of the entrance. On the one hand, the north gable presents a clear axial symmetry defined by two windows of golden proportion and a clock that flies, perpendicular to the façade plane, over the entrance shadow that defines the porch. However, this static composition is completely redefined when it comes into contact with the ground. On the one hand, the porch extends towards the avenue, resting on a wall that prolongs the alignment of the atrium volume. On the other hand, at the other end, the wall gives way to a circular concrete pillar. This structural element, clearly modern in design, accentuates the moment of access, opening up the perspective and movement towards the trees lining the road, as if its proportions and directionality brought it closer in nature to the trunks of these chestnut trees. Shifted to the south of the point of contact between the two arms that make up the volume of the nursery, the support is, nevertheless, the fundamental element that proposes the transition from the neoclassical language of the Wiedikon neighbourhood to a dynamic modernity. As if the composition orbited around its position, its presence defines the transition between the open space of the city and the more secluded space of an educational building. The porch that welcomes children and adults as they enter and leave the educational building offers deep shade to the city.
En el transcurso de este deambular urbano, el cielo ha transitado hacia un estado más tranquilo, donde el sol parece brillar ya sin la inhibición de antes. Esta luz otoñal, de una tonalidad que todavía recuerda al estío recientemente agotado, impregna de un dinamismo estimulante la neutralidad de las fachadas urbanas de la Kindergarten Wiedikon. Las diferentes articulaciones volumétricas se pueblan de claroscuros en sus zonas de contacto, mientras que las sombras arrojadas por los árboles sobre los lienzos de fachada parecen pinceladas de movimiento. Parte de esta oscilación se traslada también a la composición del cuerpo de acceso. Por un lado, el frontón norte presenta un clara simetría axial definida por dos ventanas de proporción áurea y un reloj que vuela, perpendicular al plano de fachada, sobre la sombra de entrada que define el porche. Sin embargo, esta composición estática se redefine por completo al entrar en contacto con el suelo. Por una lado, el porche se extiende hacia a la alameda apoyándose sobre un muro que prolonga la alineación del volumen del atrio. Sin embargo, en el otro extremo, el muro deja paso a un pilar de hormigón de sección circular. Este elemento estructural, de evidente factura moderna, acentúa el instante de acceso, abriendo la perspectiva y el movimiento hacia la arboleda de la vía, como si por proporciones y direccionalidad su naturaleza se encontrara más próxima a los troncos de estos castaños. Desplazado hacia el sur del punto de contacto de los dos brazos que componen el volumen de la guardería, el soporte es, sin embargo, el elemento fundamental que plantea la transición del lenguaje neoclásico del barrio de Wiedikon hacia una dinámica modernidad. Como si la composición orbitase en torno a su posición, su presencia define la transición entre el espacio abierto de la ciudad y más recogido propio de un edificio educativo. El porche que acoge a niños y adultos a la entrada y salida del edificio educativo ofrece una sombra profunda a la ciudad.





Once through the entrance porch, the enclosed space of the atrium has cubic proportions. Despite the apparent unity of its volume, the act of entering is articulated in two fundamental movements. First, a closed hallway, similar in size to the exterior porch, articulates the two movements that define the interior of the Kindergartenhaus Wiedikon. To the right and ascending, a wide linear staircase connects to the building’s communal spaces, now a gymnasium. The urban vocation of the staircase is evident, as evidenced by the opening towards the city provided by the glass window on the north façade, and could be considered one of the architectural elements that, despite its translucent presence on the exterior, establishes a dialogue between the nursery and its surroundings. On the other hand, to the left, this small hallway leads to the building’s true atrium: the hall that connects the linear wing of the classrooms with the administrative offices on the ground floor. This communicates with the city through the filter of the staircase, which, already rising, elevates itself, allowing light from the north to pass through. Discouraging direct air currents, each of these transitions between rooms is made by diagonal movements, as if we were bishops tracing a chess game on the checkerboard. In the layout of these transitions, and the circulations they define, we once again encounter the collision between a purist nature of classical ancestry and a modern dynamism assimilated from the artistic avant-garde.
Una vez traspasado el porche de acceso, el espacio cerrado del atrio presenta unas proporciones cúbicas. A pesar de la aparente unidad de su volumen, el acto de ingreso se articula en dos movimientos fundamentales. En primer lugar, un zaguán cerrado, de proporciones similares al porche exterior, articula los dos movimientos que definen el interior de la Kindergartenhaus Wiedikon. Hacia la derecha y en ascenso, una amplia escalera lineal comunica con los espacios comunitarios -ahora gimnasio- del edificio. La vocación urbana de la escalera es evidente, como manifiesta la apertura hacia la ciudad que permite la vidriera de la fachada norte, y podría considerarse uno más de los elementos arquitectónicos que, a pesar de su translucida presencia en el exterior, establece el diálogo entre la guardería y su entorno. Por otro lado, hacia la izquierda este pequeño zaguán da paso al verdadero atrio del edificio: el hall que conecta en planta baja el ala lineal del aulario con las dependencias administrativas. Este se comunica con la ciudad a través del filtro de la escalera que, ya alzando el vuelo, se eleva dejando pasar la luz de norte. Disuadiendo las corrientes de aire directas, cada uno de estos tránsitos entre estancias se realizan mediante movimientos diagonales, como si fuéramos alfiles trazando una partida de ajedrez sobre el damero del tablero. En la disposición de estas transiciones, y de las circulaciones que definen, nos encontramos de nuevo con la colisión entre una naturaleza purista de ascendencia clásica y un dinamismo moderno asimilado desde las vanguardias artísticas.






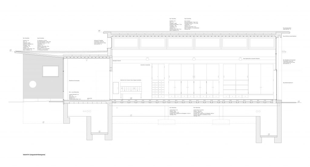
If the composition and articulation of the different volumes and architectural elements, tracing the transition between exterior and interior, have characterised the dynamic nature of the Kindergartenhaus up to this point, the linear wing of the classroom building cedes this role to the light that, from the city, stimulates a more restful directional space. The eight classrooms that make up the educational building are all located on the ground floor, arranged in a row and connected along their longest sides. Access to each of them, from the distribution atrium, is via a gallery three metres wide and almost 70 metres long. The dimensions of this space allow its function and hierarchy within the nursery as a whole to transcend the category of a distribution corridor. The western side of the gallery is opaque and houses the doors to the classrooms and cloakrooms. In contrast, the eastern side offers a dynamic contrast of light, enhanced by the alternation of service areas and toilets with huge windows that link this space directly to the street. These openings are never arranged opposite the access to the classrooms, so that the visual diagonal offered by this staggered layout provides a regular rhythm of light and shade, turning this corridor into a dynamic meeting place. Walking along it, the spatial sensation is ambiguous. The large windows allow the presence of the city and, above all, the chestnut tree-lined avenue outside, to infiltrate the interior of the nursery as another architectural element. The complexity of light, shadows and reflections that populate this gallery contradict its linear layout, giving it a perceptual complexity that blurs the separation between exterior and interior. At the end of its extension, a glass front leads back to a small porch, directly sheltered by trees which, for the children who study here, mark the start of their outdoor games every day. Beyond the constant visual and environmental connections with the outside, the ceramic tile flooring adds a further degree of urban quality to this space, blurring the boundary between the city and the Kindergartenhaus.
Si la composición y articulación de los diferentes volúmenes y elementos arquitectónicos, trazando la transición entre exterior e interior, han caracterizado la naturaleza dinámica de la Kindergartenhaus hasta este momento, el ala lineal del aulario cede este papel a la luz que, desde la ciudad, estimula un espacio direccional de vocación más reposada. Las ocho clases que componen el edificio educativo se disponen todas ellas en planta baja, colocadas en hilera y en contacto por su cara más larga. El acceso a cada una de ellas, desde el atrio de distribución, se realiza por una galería de tres metros de ancho y casi 70 de longitud. Las dimensiones de este espacio permiten que su función y jerarquía en el conjunto de la guardería transcienda la categoría de corredor distribuidor. La cara occidental de la galería es opaca, y acoge las puertas de acceso a las aulas y los roperos. Por el contrario, la cara oriental ofrece un dinámico contraste lumínico, favorecido por la alternancia de unidades de espacios servidores y aseos con enormes ventanales que vinculan este espacio directamente con la calle. Estas aperturas no se disponen nunca enfrentadas al acceso de las aulas, de forma que la diagonal visual, que este esquema de tresbolillo ofrece, otorga un pautado ritmo de claroscuro, convirtiendo este corredor en un dinámico lugar de encuentro. Al caminar a lo largo de él, la sensación espacial es ambigua. Los grandes ventanales hacen que la presencia de la ciudad y, sobre todo, de la alameda exterior de castaños, se infiltre en el interior de la guardería como un elemento arquitectónico más. La complejidad de luces, sombras y reflejos que pueblan esta galería contradicen, al mismo tiempo, su esquema lineal, otorgándole una complejidad perceptiva que diluye la separación entre exterior e interior. Al final de su extensión, un frente acristalado desemboca de nuevo en un pequeño porche, directamente al abrigo de unos árboles que, para los niños que aquí estudian, significan cada día el inicio de sus juegos al aire libre. Más allá de las constantes conexiones visuales y ambientales con el exterior, el pavimento de plaqueta cerámica añade una grado más de cualidad urbana a este espacio, propiciando que la frontera entre la ciudad y la Kindergartenhaus se desdibujen.






As in any educational building, the repetition and articulation of the classroom unit gives meaning to the spatial and functional organisation. In this case, as already mentioned, the classrooms are arranged in a row, linked along their longest side, with the short side serving as a connection to the outside. The classrooms all have exact dimensions, measuring 12 metres long by 8 metres wide. Their attached layout, along the distribution gallery, responds to the intention of seeking a south-west orientation, offering the same lighting and environmental conditions to all of them and ensuring the possibility of direct connection to the playground. The decision to open them to the outside on the shorter side allowed for a better fit on the plot, as well as a shorter gallery. However, limiting the opening to the outside to the shorter side could have caused lighting problems inside the classrooms, with a dark background in the access area. To avoid this, the cross-section of the classrooms takes on an inverted T-shape, so that a skylight, 12 metres long, rises like a lantern and has two longitudinal openings. This homogenisation of lighting conditions responds to the need for a restful classroom space, in contrast to the dynamism we had previously perceived in every space in the Kindergartenhaus Wiedikon. The front of the classroom has a floor-to-ceiling opening which, by means of two sliding panels, allows the classroom to be opened up to the playground, weather permitting. Each functional element, such as the radiators or the light fixtures—happily recovered in the latest restoration by Kohler+Ilario, which restored many of the building’s values that had been lost over time—has a domestic scale, defining an ambient warmth that overcomes the neutrality, even coldness, of some of the material finishes.
Como en todo edificio educativo, la repetición y articulación de la célula del aula da sentido a la organización espacial y funcional. En este caso, como ya se ha dicho, las aulas se disponen en hilera, vinculadas por su lado más largo, y dejando al lado corto la función de relación con el exterior. Las aulas tienen todas ellas unas dimensiones exactas, de 12 metros de largo por 8 de ancho. Su disposición adosada, a lo largo de la galería de distribución, responde a la intención de buscar la orientación suroeste, ofrecer las mismas condiciones lumínicas y ambientales a todas ellas y garantizar la posibilidad de conexión directa con el patio de juegos. La decisión de abrirlas al exterior por el lado más corto permitió un mejor encaje en la parcela, así como una menor longitud de la galería. Sin embargo, limitar la apertura al exterior al lado más corto podría haber generado problemas de iluminación en el interior de las aulas, con un fondo oscuro en la zona de acceso. Para evitar esto, la sección transversal de las aulas adquiere un esquema en T invertida, de forma que un lucernario, cuya longitud son los 12 metros del aula, se eleva a modo de linterna y dispone de dos aperturas longitudinales. Esta homogeneización de las condiciones lumínicas responde a la necesidad de reposo de un espacio de aula, en contraste con el dinamismo que hasta ahora habíamos percibido en cada espacio de la Kindergartenhaus Wiedikon. El frente del aula presenta una apertura de suelo a techo que, mediante dos hojas deslizantes, permite volcar el aula al patio, siempre y cuando las condiciones meteorológicas lo permitan. Cada elemento funcional, como los radiadores o las luminarias -felizmente recuperadas en la última restauración de Kohler+Ilario, que devolvió a este edificio muchos de sus valores que se habían perdido con el tiempo- presentan una escala doméstica, definiendo una calidez ambiental que supera la neutralidad, incluso frialdad, de algunos de los acabados materiales.






As midday approaches, the sun seems determined to remain present. The western façade of the lecture hall building directly reflects the rhythm generated by the skylights inside, giving it the appearance of a serrated roof with an industrial character. The compositional rhythm of the metalwork is interrupted by trellises on the blind parts of the façade, alternating the geometric purity of the manufactured elements with the seemingly random nature of the vegetation, whose vibrant range of greens enriches the purist neutrality of its language. Some toys lie forgotten from yesterday, scattered on the floor of the sandpits, now muddy from the recent rains. The first chestnuts to fall to the ground during this young autumn are scattered across the playground, already detached from their spiky husks and revealing their polished, shiny outer skin. Despite the different heights of each of the volumes that make up the Kindergarten Haus Wiedikon, the eaves run along each of its cornices, unifying a set of different bare planes and glass openings. On the balcony of the gymnasium, a group of children play chase, running up and down the stairs to the courtyard. Without needing to glance at the clock, which, in primary colours on the upper corner of the façade, already marks lunchtime, they enjoy themselves, aware that the bell signalling the start of classes will not ring again for almost another day.
Rayando ya el mediodía, el sol parece decidido a mantenerse presente. La fachada occidental del aulario traduce directamente el ritmo generado por los lucernarios de linterna en su interior, ofreciendo un aspecto de cubierta dentada de carácter industrial. El ritmo compositivo de las carpinterías metálicas se ve interrumpido por emparrados sobre las partes ciegas de la fachada, alternando la pureza geométrica de los elementos facturados con la naturaleza aparentemente aleatoria de la vegetación, cuya vibrante gama de verdes enriquece la purista neutralidad de su lenguaje. Algunos juguetes yacen olvidados desde ayer, dispersados por el suelo de los areneros, y ahora embarrados por las recientes lluvias. Las primeras castañas en caer al suelo durante este joven otoño se dispersan por el patio, desprendidas ya de su camisa de púas y dejando a la vista su pulida y brillante piel exterior. A pesar de las diferentes alturas de cada uno de los volúmenes que componen la Kindergarten Haus Wiedikon, el elemento de alero recorre cada una de sus cornisas, unificando un conjunto de diferentes planos desnudos y aperturas de vidrio. Sobre el balcón del cuerpo del gimnasio, un grupo de niños juega a perseguirse subiendo y bajando las escaleras hasta el patio. Sin necesidad de ojear el reloj que, sobre la esquina superior de la fachada y en colores primarios, marca ya la hora del almuerzo, disfrutan conscientes de que la alarma de ingreso a las clases tardará todavía casi un día en volver a sonar.






