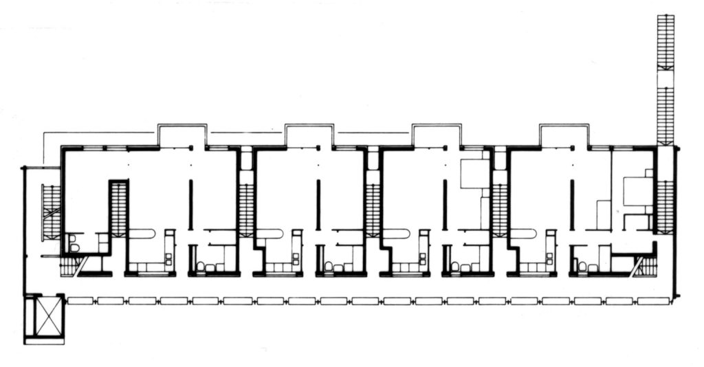
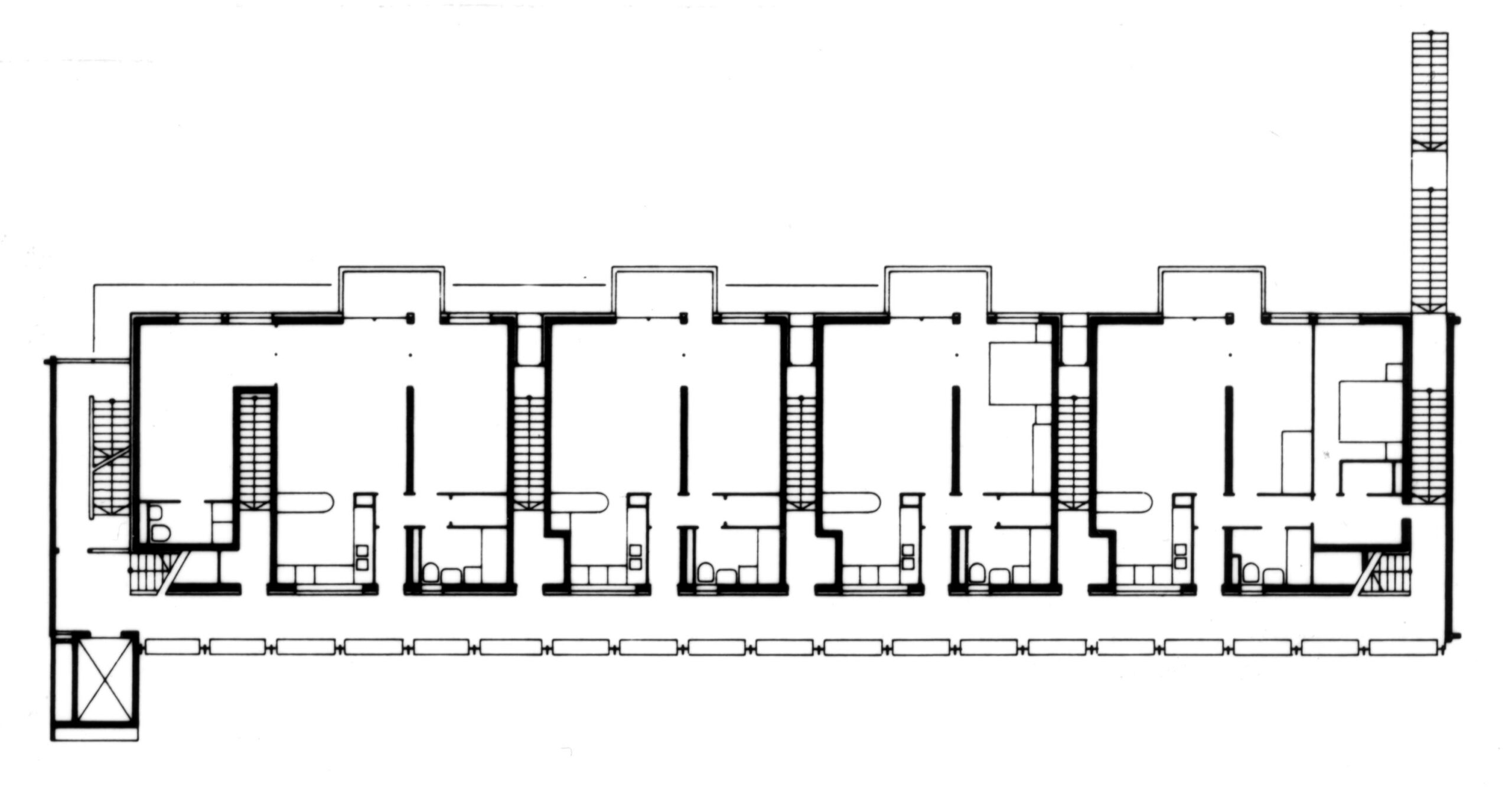
The commission followed two competition entries OMA submitted to the Internationale Bauaustellung (IBA) in 1981. The program includes 26 apartments which occur as three types: 1. Penthouses 2. Three floors of flats which are reached from a double-height gallery 3. Garden access maisonettes. The apartments sit on a podium above the new Checkpoint facilities for customs workers and Allied forces. The building was completed shortly after the Berlin Wall came down.The site is in the baroque area of Friedrichstadt, which is now dominated by the architectural remains of the pre- and post-war period, the Berlin Wall and the Checkpoint (the East/West border crossing for non-residents).The project exploits the latent qualities of the site. The building functions as a series of pavilions for border control which form a podium, with a ‘Miethaus’ on top. It is lifted off the ground, separating the housing from the Checkpoint and leaving the street level to activities related to border control, which penetrate to the back of the site and include an underground car park.
El encargo se basó en dos proyectos presentados por OMA al concurso Internationale Bauaustellung (IBA) en 1981. El programa incluye 26 apartamentos de tres tipos diferentes: 1. Áticos. 2. Apartamentos de tres plantas a los que se accede desde una galería de doble altura. 3. Dúplex con acceso al jardín. Los apartamentos se sitúan en un podio sobre las nuevas instalaciones del Checkpoint para los trabajadores de aduanas y las fuerzas aliadas. El edificio se terminó poco después de la caída del Muro de Berlín. El emplazamiento se encuentra en la zona barroca de Friedrichstadt, que ahora está dominada por los restos arquitectónicos del periodo anterior y posterior a la guerra, el Muro de Berlín y el Checkpoint (el paso fronterizo entre el este y el oeste para los no residentes). El proyecto aprovecha las cualidades latentes del emplazamiento. El edificio funciona como una serie de pabellones para el control fronterizo que forman un podio, con una «Miethaus» en la parte superior. Está elevado del suelo, separando las viviendas del Checkpoint y dejando el nivel de la calle para las actividades relacionadas con el control fronterizo, que penetran en la parte trasera del emplazamiento e incluyen un aparcamiento subterráneo.
Text via OMA. Translation by Hidden Architecture

















