This article is part of Infrastructural Urbanism, a series curated by Hidden Architecture where we explore the evolutionary potential over time of certain urban and architectural structures. The infrastructural nature of these projects allows them to accommodate and assume the uncertainty of future development as a project tool.
Este articulo es parte de Urbanismo Infraestructural, serie que explora el potencial evolutivo a lo largo del tiempo de determinadas estructuras urbanas y arquitectónicas. El carácter de infraestructura de estos proyectos les permite albergar y asumir la incertidumbre de un desarrollo futuro como herramienta de proyecto.
***
Context
The village of Hongcun is located in south-eastern China, in the historic region of Huizhou, Anhui Province. In a natural environment dominated by the presence of Huangshan, the legendary ‘Yellow Mountains’, the human settlements that make up this area are characterised by an elegant austerity. These small villages are structured around a labyrinthine network of cobbled alleys. With a very high building density, the houses and public buildings are arranged in a continuous manner, leaving hardly any open space to accommodate different urban events. Defined by high exterior walls of brick or stone, plastered white and with hardly any openings to the outside, they delimit the linear public road with their abstract and silent presence.
La aldea de Hongcun se encuentra en el sureste de China, en la histórica región de Huizhou, provincia de Anhui. En un entorno natural dominado por la presencia de Huangshan, las legendarias “Montañas Amarillas”, los asentamientos humanos que componen esta área se caracterizan por una elegante austeridad. Estos pequeños poblados se estructuran a partir de una laberíntica red de callejones empedrados. Con una densidad constructiva muy alta, las viviendas y edificios públicos se disponen de forma continua, sin apenas dejar espacio abierto que albergue diferentes acontecimientos urbanos. Definidas por unos altos muros exteriores de ladrillo o piedra, enlucidos de blanco y sin apenas aperturas al exterior, delimitan con su abstracta y muda presencia el viario público lineal.
As is customary in Chinese urban tradition, larger-scale open spaces are dominated by the presence of water. In the case of Hongcun, the Jiyin Canal delimits its southern boundary, giving it its characteristic crescent shape. Inside the village, the only open space of considerable size is a pond, also crescent-shaped. Some of Hongcun’s most important public and private buildings are located around it. However, despite the social hierarchy they enjoy in comparison to others, there are hardly any architectural elements that communicate the importance of these buildings. Their silent walls do not allow for any symbolic or ornamental expression. Only the ‘matouqiang’, the characteristic gables topped with dark tiles, suggest a different rhythm to this central space, which otherwise does not invite visitors to linger. Although it is now possible to walk around the perimeter of the pond along a narrow gallery, the surface of the water allows for nothing more than this wandering movement around it.
Como es habitual en la tradición urbana china, los espacios abiertos de mayor escala están dominados por la presencia del agua. En el caso de Hongcun, el canal de Jiyin delimita su trazado por el sur, confiriendo su característica forma urbana de media luna. Ya en el interior de la aldea, el único espacio abierto de una escala considerable lo constituye un estanque de agua, también con forma de media luna. Alrededor de él, se disponen algunos de los edificios públicos y privados más importantes de Hongcun. Sin embargo, a pesar de la jerarquía social que disfrutan en comparación con otros, no existen apenas elementos arquitectónicos que comuniquen la importancia de estas construcciones. Sus paredes mudas no se permiten ninguna expresión simbólica u ornamental. Tan solo los “matouqiang”, los característicos hastiales rematados por tejas oscuras, sugieren un ritmo diferente a este espacio central, que por otro lado no invita a la estancia. Aunque en la actualidad es posible rodear el perímetro del estanque recorriendo una estrecha galería, la superficie de agua no admite más que este movimiento deambulatorio en torno a ella.
The origins of the village of Hongcun date back to the 12th century. Throughout different centuries and dynasties, this region of Anhui was characterised by rich commercial activity, mainly focused on the export of tea and salt. This mercantile economy profoundly influenced the social composition of this area, as well as the urban appearance of its towns. The fact that the head of the family, i.e. the male figure, spent long periods away from the region – usually several years – engaged in commercial activity, was fundamental in defining the specific nature of the types of housing.
El origen de la aldea de Hongcun se remonta hasta el siglo XII. A lo largo de diferentes siglos y dinastías, esta región de Anhui se caracterizó por una rica actividad comercial, centrada principalmente en la exportación de té o sal. Esta economía mercantil determinó profundamente la composición social de esta zona, así como la fisonomía urbana de sus poblaciones. El hecho de que el cabeza de familia, esto es, la figura masculina, pasase largas temporadas fuera de la región – habitualmente varios años – dedicado a su actividad comercial, fue fundamental a la hora de definir la especificidad de las tipologías habitacionales.




References
The different types of housing in the Huizhou region are variations on the traditional courtyard house in China. Before explaining the unique features that characterise this particular model, it is advisable to understand the spatial patterns common to the general type of courtyard house, as well as the origin of its architectural structure.
Las diferentes tipologías habitacionales de la región de Huizhou constituyen variaciones de la tradicional vivienda patio en China. Antes de explicar las singularidades que caracterizan este modelo particular, es recomendable comprender los patrones espaciales comunes al tipo general de vivienda patio, así como el origen de su estructura arquitectónica.
The enormous expanse of territory that Chinese civilisation has covered throughout history, as well as the wide range of climatic regions, favours a high level of differentiation in the original housing types. However, courtyard housing is a common denominator in many geographical regions, constituting the minimum urban cell from which human settlements were consolidated, both in urban and rural environments. Since its origins, even the simplest popular dwelling has had a symmetrical and axial composition, where a main body, known as the “tang”, always faces south, tracing the axis that organises the rest of the complex. The “tang’” which we could translate as an atrium or hall, drawing an analogy with the Mediterranean tradition that is not always justified, housed all indoor activities, from rest to ceremonial acts, including, of course, all kinds of domestic work. Behind the tang, there are a series of secondary spaces, small rooms known as “shi”, which were used for resting in relative privacy.
La enorme extensión de territorio que ha abarcado la civilización china a lo largo de la historia, así como el amplio rango de regiones climáticas, favorece un alto nivel de diferenciación en las tipologías habitacionales originales. Sin embargo, la vivienda patio es un denominador común en muchas de las regiones geográficas, constituyendo la célula urbana mínima a partir de la cual se consolidaron los asentamientos humanos, tanto en entornos urbanos como rurales. Desde sus orígenes, incluso la vivienda popular más sencilla responde a una composición simétrica y axial, donde un cuerpo principal, conocido como “tang”, se orienta siempre a sur, trazando el eje que que organiza el resto del conjunto. El “tang”, que podríamos traducir como atrio o salón trazando una analogía no siempre justificable con la tradición mediterránea, albergaba todas las actividades interiores, desde el descanso hasta actos ceremoniales, incluyendo por supuesto todo tipo de trabajos domésticos. Posteriormente, aparecen una serie de espacios secundarios en la parte trasera del “tang”, unos pequeños habitáculos conocidos como “shi” y destinados a acoger el descanso con algo de intimidad.
This duality between the “tang” and the “shi“, between light and shadow, defines the fundamental structure of the courtyard house typology in China. The organisation of different “shi” spaces, small dark chambers, around the main body of the “tang’” the fundamental space of the house, forms an open courtyard around a north-south axis where all outdoor activities take place. The differentiation between open and closed, light and shadow, can be seen first in the dichotomy between open space – the courtyard – and the built volume – the “tang” and the set of “shi” spaces around it. Secondly, and now on a domestic scale, it reveals the differentiation between the “tang” – a bright, open, south-facing space, the centre of social and public activity in the dwelling – and the “shi” – private, dark, minimalist chambers intended for intimate rest. The axial axis that makes up the domestic complex, symmetrically arranged around a courtyard, also determines the rituality and the fundamental access route. Passing through the entrance gate, usually a central opening in the outer wall that delimits the enclosure, one descends to the main courtyard of the dwelling, along which, always following the north-south axial axis, is the “tang”, a reception and ceremonial space that gives meaning to the ensemble of rooms. This walled enclosure, usually quadrangular in its most basic form, represents the cosmic vision of the universe for Chinese civilisation. The repetition and articulation of these basic housing elements, the courtyard house typology – “tian” in Chinese – constitutes the urban structure that makes up traditional Chinese cities. From a cosmological interpretation, we can understand the “tian” as an expansive void, delimited by the buildings arranged around it following an axial axis from the “tang’” from which to control the lunar cycles and seasonal changes.
Esta dualidad entre el “tang” y el “shi”, entre la luz y la sombra, define la estructura fundamental de la tipología de vivienda patio en China. La organización de diferentes espacios “shi”, pequeñas cámaras oscuras, alrededor del cuerpo principal del “tang”, el espacio fundamental de la vivienda, compone a partir del eje axial norte-sur un patio abierto donde se desarrollan todas las actividades al aire libre. La diferenciación entre abierto y cerrado, luz y sombra, se aprecia en primer lugar en la dicotomía entre espacio abierto – el patio – y el volumen construido – el “tang” y el conjunto espacios “shi” en torno a él -. En segunda instancia, y ya en el ámbito de la escala doméstica, revela la diferenciación entre el “tang” – espacio luminoso, abierto y orientado a sur, centro de la actividad social y pública en la vivienda – con los “shi” – las cámaras privadas, oscuras y reducidas al mínimo destinadas al descanso íntimo-. El eje axial que compone el conjunto doméstico, de forma simétrica en torno a un patio, determina también la ritualidad y el recorrido fundamental de acceso. Atravesando la cancela de entrada, normalmente una apertura central en el muro exterior que delimita el recinto, se desciende al patio principal de la vivienda, a lo largo del cual y siguiendo siempre el eje axial norte-sur, se encuentra el “tang”, espacio de recepción y ceremonia que da significado al conjunto de estancias. Este recinto cerrado por muros, normalmente de trazado cuadrangular en sus unidades más elementales, representa la visión cósmica del universo para la civilización china. La repetición y articulación de estos elementos habitacionales básicos, la tipología de vivienda patio – “tian” en chino -, constituye la estructura urbana que compone las ciudades tradicionales chinas. Desde una interpretación cosmológica, podemos entender el “tian” como un vacío expansivo, delimitado por las edificaciones ordenadas en torno a él siguiendo un eje axial a partir del “tang”, desde el que controlar los ciclos lunares y los cambios estacionales.



Operative Strategies
In the village of Hongcun, the house of the merchant Wang Dinngui, known as Chen Zhi Tang and built in 1855, is a valuable example illustrating the particularities that characterise the variation of the “tian” typology typical of the Huizhou region. First, it is necessary to consider two factors that are presumably decisive in favouring this evolution.
En la aldea de Hongcun, la casa del comerciante Wang Dinngui, conocida como Chen Zhi Tang y construida en 1855 es un ejemplo de gran valor para ilustrar las particularidades que caracterizan la variación de la tipología “tian” propia de la región de Huizhou. En primer lugar, es necesario considerar dos factores que, presumiblemente, son determinantes para favorecer dicha evolución.
On the one hand, the limited availability of land for building houses means that the traditional courtyard house, characterised by its large footprint in the case of noble dwellings, is much more modest in size in this region. As a result, the villages in the region were very dense in terms of inhabitants per square metre, although their size was, as can be seen today, relatively small.
Por un lado, la escasa disponibilidad de tierra para construir las viviendas hace que la tradicional vivienda patio, caracterizada por su amplia huella en planta en el caso de viviendas nobles, presente en esta región dimensiones mucho más modestas. Como consecuencia, los poblados de la región eran muy densos en términos de habitante por metro cuadrado, si bien su extensión era, como se puede apreciar hoy en día, relativamente reducida.
On the other hand, the particular structure of merchant families defined a way of living that was different from what was usual at the time for similar social classes. With a strong patriarchal structure, in which women had a much lower status than men and their roles were focused on caring for the elderly and children, the almost permanent absence of the father had a notable influence on the evolution of certain architectural patterns. It was common for the patriarchal figure to spend long periods away from home once his children had been conceived, returning after years of absence and staying only long enough to organise the next trading expedition. The relationship between the other members of the family unit and this patriarchal figure was practically non-existent, manifesting itself more in the evocation of an absent power than in social relations themselves. In this regard, it should be noted that the courtyard, as the central element that organised life in the “tian” typology, hosted all kinds of activities and events, from those related to the internal functioning of a house to social representations of a community nature. The permanent absence of the patriarchal figure greatly limited the development of the open and community-related character of these spaces, making the courtyard dwellings in the Huizhou region more introverted in nature. Instead of constituting the living space for the family unit, the courtyards of ‘tian’ dwellings had a more spiritual function: to honour the feeling of absence, especially of deceased ancestors.
Por otro lado, la particular estructura de las familias comerciantes define un modo de habitar diferente a lo habitual en la época para clases sociales análogas. Con una fuerte estructura patriarcal, en la que la mujer tenía una posición muy inferior a la del hombre y sus funciones se centraban en el cuidado de los mayores y los hijos, la ausencia casi permanente del padre de familia tiene una influencia notable en la evolución de ciertos patrones arquitectónicos. Era habitual que, una vez fueran concebidos los hijos, la figura patriarcal pasara largas temporadas fuera de casa, regresando al cabo de años de ausencia y para permanecer el tiempo imprescindible para organizar la siguiente expedición comercial. La relación del resto de miembros de la unidad familiar con esta figura patriarcal era prácticamente inexistente, y se manifestaba más en la evocación de un poder ausente que en las propias relaciones sociales. A este respecto, hay que considerar que el patio, como elemento central que organizaba la vida en la tipología “tian”, acogía todo tipo de actividades y acontecimientos, desde las propias del funcionamiento interno de una casa hasta las representaciones sociales de carácter comunitario. La ausencia permanente de la figura patriarcal limitó mucho el desarrollo del carácter abierto y relacionado con la comunidad de estos espacios, haciendo que las viviendas patio de la región de Huizhou presentaran una naturaleza más introvertida. En lugar de constituir el espacio de vida para la unidad familiar, los patios de las viviendas “tian” tenían una función más espiritual: honrar el sentimiento de ausencia, en especial de los antepasados fallecidos.





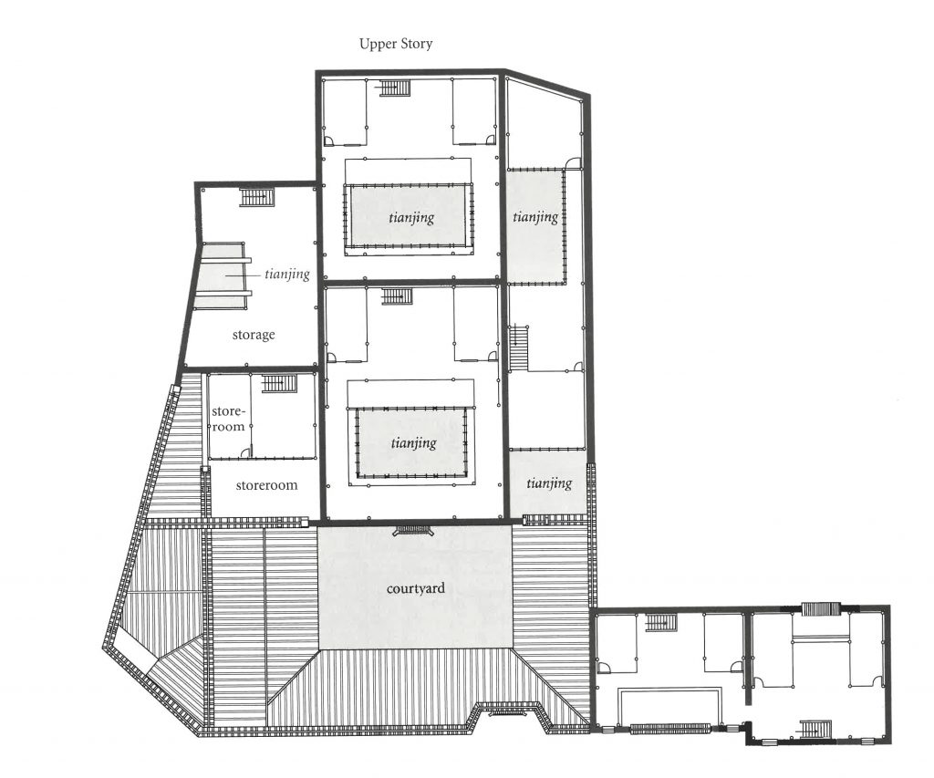
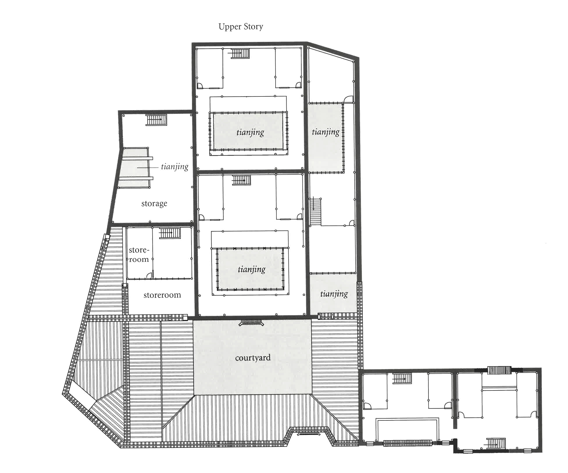
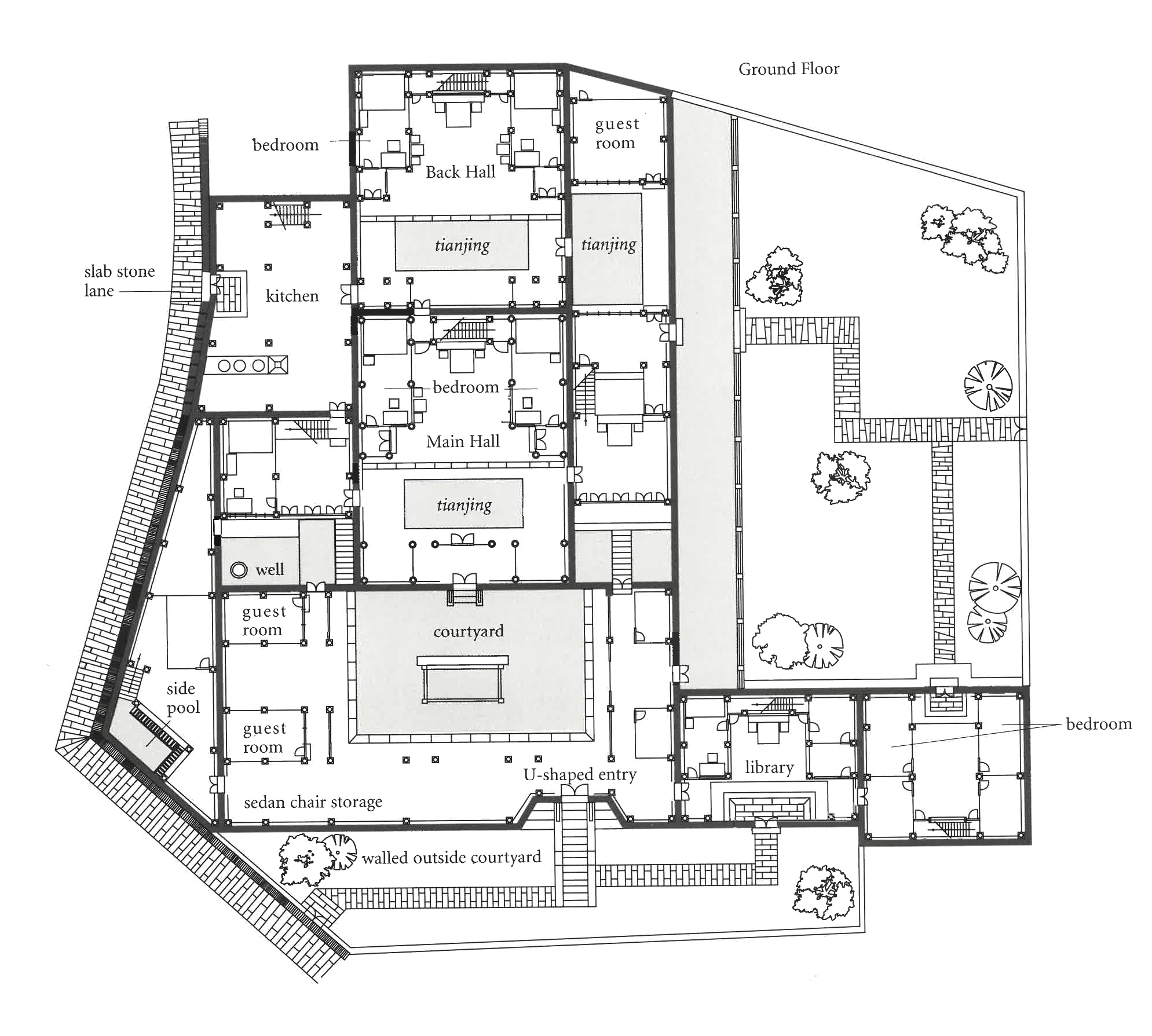
In this way, the spatial pattern of the courtyard, the “tian”, evolved in the dwellings of the Huizhou region into a smaller element known as the “tianjing”. The “tianjing”, which could be translated as skylight, is the fundamental element that structures the spatial organisation of this variation of the traditional courtyard house. Despite its smaller scale, the functional layout of this variation of the courtyard house is similar to that discussed above. The “tianjing” is the centre that organises the adjacent spatial units, which are always arranged along a north-south axis. The “tang”, or atrium of the dwelling, is always open and physically connected to the central space, except for a difference in level marked by one or more steps. At the rear of the “tang”, as well as on the sides of the “tianjing“, are the service areas or private chambers, the “shi”. While traditional courtyard houses in China tend to have a single floor and a considerable size, in this area it is common for them to have at least two levels, connected environmentally by the empty space of the “tianjing”.
De esta forma, el patrón espacial de patio, el “tian” evoluciona en las viviendas de la región de Huizhou a un elemento de dimensiones más reducidas, el conocido como “tianjing”. El “tianjing”, que podría traducirse como lucernario, es el elemento fundamental que estructura la organización espacial de esta variación de vivienda patio tradicional. A pesar de una escala más reducida, el esquema funcional de esta variación de vivienda patio es análogo al comentado anteriormente. El “tianjing” es el centro que organiza las unidades espaciales adyacentes, siempre dispuestas siguiendo un eje axial norte-sur. El “tang”, o atrio de la vivienda, se encuentra siempre abierto y conectado físicamente con el espacio central, salvo por un desnivel trazado por uno o varios escalones. En la parte posterior del “tang”, así como en los laterales del “tianjing” se disponen los espacios de servicio o cámaras privadas, los “shi”. Si la vivienda tradicional patio suele presentar en China una sola planta y una extensión considerable, en esta zona es habitual que dispongan de al menos dos niveles, conectados ambientalmente por el vacío del “tianjing”.
The position of the “tianjing” in relation to the other rooms and, above all, in relation to the entrance and the street, gives rise to different variants of this type of dwelling. The most common solution is found in smaller dwellings. In these, the “tianjing” appears on the entrance façade, separated from the street only by the outer wall. This variant is known as “ao”. As the plot becomes larger, more tianjing elements appear, structuring new “tian-tang-shi” domestic units. The next variant, known as “kou”, has a single “tianjing” in the centre. The combination of these two, known as the “ri” variant, features a “tianjing” on the entrance façade and another in the central part, offering greater complexity and spatial richness, as well as more flexible operation and better climate control.
La posición del “tianjing” en planta en relación al resto de estancias y, sobre todo, en relación al acceso y la calle, provoca la aparición de diferentes variantes de esta tipología. En las viviendas más pequeñas encontramos la solución más frecuente. En ellas, el “tianjing” aparece en la fachada de acceso, separado de la calle solo por el muro de cerramiento exterior. Esta variante tipológica se conoce como “ao”. A medida que la parcela presente mayor superficie, aparecen más elementos “tianjing” estructurando nuevas unidades domésticas de “tian-tang-shi”. La siguiente variante, conocida como “kou”, dispone de un solo “tianjing” en el centro. La combinación de estas dos, conocida como variante “ri” presenta un “tianjing” en la fachada de acceso y otro en la parte central, ofreciendo una mayor complejidad y riqueza espacial, así como un funcionamiento operativo más flexible y una mejor capacidad de control climático.





The house known as Chen Zhi Tang, in Shongcun, is one of the most valuable and complex examples of this type of courtyard house. Built on a large plot of almost 2,000 square metres, it has a compact two-storey volume, articulated by the layout of 10 “tianjing”, one of which can be considered a conventional courtyard due to its larger dimensions. The arrangement of so many “tianjing” elements gives the house as a whole enormous, albeit only potential, versatility of use. The different spaces are related to each other according to the basic rules described above, although the greater complexity here translates into a greater wealth of formal solutions. In any case, the north-south axis and the “tianjing-tang-shi” unit form two-storey domestic units that could be independent. The transition from one unit to another on the ground floor is always via the tianjing and a series of galleries delimited by wooden screens, ensuring a degree of privacy and interdependence of uses. In each of these units there are stairs, always located in a ‘shi’ at the rear of the “tang”, which connect to the upper floor. Although flexibility of use on the ground floor is possible due to the system of galleries and “tianjing” – and the multiplicity of connections they allow – on the first floor each of the units is independent, being only accessible via the stairs that connect to the lower level. In this way, the private spaces are located on the upper floor, which also enjoys better ventilation and sunlight. The ground floor is limited to service, social and community uses, especially the veneration of ancestors and the “absence” of the patriarchal figure, so one might imagine reduced social activity. In this sense, this variant of the “tian” courtyard house could be considered more of a sanctuary than a domestic and urban space per se, at least as far as the ground floor is concerned.
La vivienda conocida como Chen Zhi Tang, en Shongcun, constituye uno de los ejemplos más valiosos y complejos de esta tipología de vivienda patio. Construida en una parcela de grandes dimensiones, casi 2000 metros cuadrados, presenta un compacto volumen de dos plantas de altura, articulado por el trazado de 10 “tianjing” – pudiéndose considerar uno de ellos un patio convencional por sus mayores dimensiones -. La disposición de tantos elementos “tianjing” otorga al conjunto de la vivienda de una enorme, aunque tan solo potencial, polivalencia de uso. Los distintos espacios se relacionan entre sí siguiendo las reglas básicas anteriormente descritas, aunque la mayor complejidad se traduce aquí en una riqueza mayor de soluciones formales. En todo caso, el eje axial norte-sur y la unidad “tianjing-tang-shi” conforman unidades domésticas de dos alturas que podrían ser independientes. La transición de una unidad a otra, en planta baja, se realiza siempre a través de los “tianjing” y de un conjunto de galerías delimitadas por mamparas de madera, de forma que se garantice cierta privacidad y la interdependencia de usos. En cada una de estas unidades aparecen unas escaleras, colocadas siempre en un “shi” situado en la parte posterior del “tang”, que comunican con la planta superior. Aunque la flexibilidad de uso en planta baja es posible debido al sistema de galerías y “tianjing”– y la multiplicidad de conexiones que estos permiten- en la planta primera cada una de las unidades es independiente, siendo solo accesible a través de las escaleras que comunican con el nivel inferior. De esta forma, los espacios privados se disponen en la planta superior, que disfruta además de unas mejores condiciones de ventilación y soleamiento. La planta baja queda limitada a los usos de servicio, sociales y comunitarios, especialmente el de veneración a los antepasados y la “ausencia” de la figura patriarcal, por lo que cabría imaginar una reducida actividad social. En este sentido, se podría considerar esta variante de vivienda patio “tian” más como un santuario que como un espacio doméstico y urbano propiamente dicho, al menos en lo que a la planta baja se refiere.
In addition to the possible reasons for the typological evolution towards “tianjing” described above, its climate regulation function could also be considered. In these latitudes of China, the characteristics of the continental inland climate overlap with tropical phenomena. The south-facing orientation, an essential feature in the layout of a traditional courtyard house, can cause excessive exposure to heat in the summer months, given the usual dimensions of a “tian” The “tianjing”, on the other hand, considerably reduces this direct exposure to the sun, while also facilitating proper ventilation between the two or three floors that usually make up this type of house. Their considerably reduced floor plan dimensions make it possible for many dwellings to have at least two “tianjing”, ensuring much-needed cross ventilation, especially when we consider the high building density of the settlements in this area, as well as their almost completely enclosed nature. Finally, it is common for these “tianjing” to be used as water collection elements. To this end, their flooring is usually slightly recessed and always covered with stone, so as to facilitate the correct collection and channelling of water for later consumption.
A las posibles razones de la evolución tipológica hacia los “tianjing”, anteriormente descritas, se podría considerar también su función de regulación climática. En estas latitudes de China, las características del clima continental de interior se superponen a fenómenos de índole tropical. La orientación a sur, un fundamento ineludible en el trazado de una vivienda patio popular, puede provocar una exposición excesiva al calor en los meses de verano, siempre y cuando consideremos las dimensiones habituales de un “tian”. El “tianjing”, por el contrario, reduce considerablemente esta exposición directa al sol, facilitando además la correcta ventilación entre las dos o tres plantas que suelen componer esta tipología. Sus dimensiones en planta considerablemente reducidas, facilitan que en muchas viviendas aparezcan al menos dos “tianjing”, garantizando una ventilación cruzada muy necesaria, especialmente si consideramos la alta densidad edificatoria de los asentamientos de esta zona, así como su carácter casi completamente cerrado al exterior. Por último, es habitual que estos “tianjing” se utilizaran como elementos recolectores de agua, Para ello, su pavimento suele encontrarse ligeramente rehundido y siempre revestido en piedra, de forma que se facilitara la correcta recogida y canalización del agua para su consumo posterior.







Infrastructural Nature
The spatial pattern composed of the domestic unit “tianjing-tang-shi” is completely autonomous in its function and structure. However, its high capacity for combination to form larger units of notable complexity gives it an infrastructural nature with a high potential for evolution and development. Although, in the specific case of the “tian” courtyard dwellings in the Huizhou region, its potential is very limited to the particular understanding of the family and social structure that defines the act of inhabiting, its constitution as a minimal autonomous and self-sufficient unit, as well as its almost unlimited capacity for combination and reproduction, make it an element of great urban possibilities.
El patrón espacial compuesto por la unidad doméstica “tianjing-tang-shi” es absolutamente autónomo en su función y estructura. Sin embargo, su alta capacidad de combinación para componer unidades mayores y de una complejidad notable le otorga una naturaleza infraestructural con alta posibilidad de evolución y desarrollo. A pesar de que, en el caso concreto de las viviendas patio “tian” de la región de Huizhou, su potencialidad quede muy limitada al particular entendimiento de la estructura familiar y social que define el acto de habitar, su constitución como unidad mínima autónoma y autosuficiente, así como la capacidad casi ilimitada de combinación y reproducción hacen de ella un elemento de grandes posibilidades urbanas.
Their arrangement in high-density settlements, as well as their development on very small plots, did not result in a rigid domestic space. On the contrary, the layout of the “tianjing” elements, with their multiple possibilities of position and size that give rise to multiple typological variations, offers great flexibility and versatility of use, as well as a high capacity for change over time. Inside the exterior masonry walls – which act as fire protection for the rich domestic spatial world – the possibilities for layout and composition based on the “tianjing” and wooden circulation galleries are endless, so they could be adapted to multiple initial requirements and, more importantly, their layout could be altered with relative ease in the face of unforeseen needs.
Su disposición en asentamientos con alta densidad edificatoria, así como su desarrollo en parcelas muy reducidas, no generó un carácter rígido del espacio doméstico. Por el contrario, el trazado de los elementos “tianjing”, con las múltiples posibilidades de posición y tamaño que hacen surgir múltiples variaciones tipológicas, ofrece una gran flexibilidad y polivalencia de uso, así como una alta capacidad de mutabilidad en el tiempo. En el interior de los muros de fábrica exteriores – que actúan como protección cortafuegos para el rico mundo espacial doméstico – las posibilidades de trazado y composición a partir de los “tianjing” y las galerías de circulación de madera son infinitas, por lo que podrían adaptarse a múltiples requerimientos de partida y , lo que es más importante, alterar su disposición con relativa facilidad ante necesidades imprevistas.
The combination of different “tianjing” elements in a single dwelling also offers very interesting possibilities for climate control. In addition to reducing heat gain from excessive sunlight, they promote a complex cross-ventilation system, which guarantees adequate living conditions even in urban areas with high building density and no contact with the outside.
La combinación de diferentes elementos “tianjing” en una sola vivienda ofrece, además, unas posibilidades de control climático muy interesantes. Además de reducir la ganancia térmica por exceso de soleamiento, favorecen un complejo sistema de ventilación cruzada, que garantiza unas condiciones de habitabilidad adecuadas incluso en tejidos urbanos de alta densidad edificatoria y nulo contacto con el exterior.











